Commercial Properties For Sale in Powys
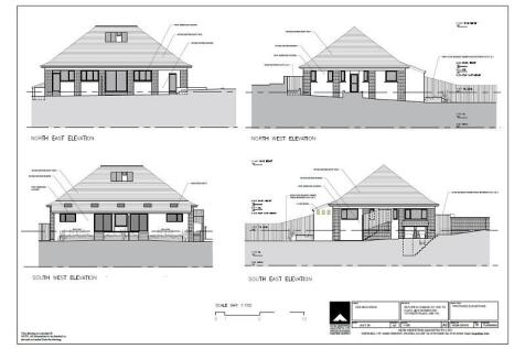
Former St John Ambulance Clinic, Ystradgynlais — Detached commercial building with planning approved (Ref: 25/0980/FUL) to convert into three flats. Centrally located close to local amenities, with a garden area and potential to become a large bungalow (STP). Currently leasehold with commer...
Mid Wales attractive Victorian Country House Hotel set in 2.25 acresFour miles of fishing rights15 ensuite letting bedrooms (3 family suites)Bar and lounge facilitiesTwo section restaurant (40)Extensive trade and private riverside gardens
BRECON BEACONS - USK VALLEY CANALSIDE PUB WITH EXCELLENT ACCOMMODATIONBrecon Beacons/Usk Valley riverside and canalside pubCharacter public house and restaurant4 bed, 20 berth bunkhouse letting accommodationTraditional bar and restaurant (80)Owners accommodation, gardens & car parkingT/o £431,
Mid-Wales, centuries old Main Road Inn, Six-section character beamed Bars & Restaurants, Outstanding 3 Bedroom Owners Accommodation, Separate en suite Letting/Staff Bedroom, Extensive Trade Gardens (set in 0.78 of an acre), Recently fully refurbished, To let on favourable Private Free of Tie Lease
Edge of Cambrian mountains market town B&BOutdoor capital of Wales Town centre location in Upper Wye Valley Character restaurant/breakfast room plus catering kitchenFive quality en suite letting bedroomsTwo self-contained holiday letsExcellent owners apartment.T/O £110,000 pa















