Land For Sale in SS (Postcode Area)
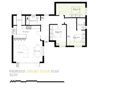
Bear Land & Developments are pleased to offer for sale this exceptional property opportunity in the sought-after location of Leigh Hill, Leigh-On-Sea. This prime land, with planning permission already secured for three stunning four-bedroom houses, presents an exciting development site for those ...
A cleared site of approx. 0.321 acres close to the high street, in the heart of Southend City Centre. Located between Alexandra Street and Clarence Street, the site has frontages on both and offers expansive views across the City Centre and, at higher levels, the Thames Estuary. Southe...
The property comprises a plot of land measuring approximately 1.381 acres, situated directly off the A127 and accessed via a shared road. The yard has been predominantly surfaced with Type 1 material. The site has been used for the current owner's business operations for approximately 40 years,...
**Being sold via Secure Sale online bidding. Terms & Conditions apply** Exciting Opportunity: Two Apartments with Freeholds & Development Land (stpp) in Westcliff-on-Sea Prime Properties with Exceptional Investment and Development Potential with both apartments, freehold and land to s...
PLANNING GRANTED Ref: APP/D1590/W/24/3343715 Set one road back from the sea front and occupying the Empire cinema of old. This one of a kind development has plans for 27 residential units 7 Commercial units and 4 Additional community or residential units. Arranged over five and six floors with 10...
Guide Price *£1,300,000 to £1,400,000* Bear Estate Agents are delighted to offer this prime development opportunity with full planning approval (21/00180/FUL) for the construction of 26 high-quality apartments in the sought-after town of Rayleigh. This exceptional project consists of a ...
We are delighted to present a rare and exceptional opportunity to acquire a prime plot of land with planning permission approved in the picturesque Langdon Hills area. Spanning an impressive 1.5 acres (STLS), this exceptional parcel offers breathtaking far-reaching views of the Thames, extending ...
Bear Land & Developments are pleased to offer for sale this exceptional property opportunity in the sought-after location of Leigh Hill, Leigh-On-Sea. This prime land, with planning permission already secured for three stunning four-bedroom houses, presents an exciting development site for those ...
Welcome to this exceptional property opportunity in the charming location of Woodside, Leigh-On-Sea. This development site offers the perfect canvas for your dream project - a demolition and rebuild opportunity that promises to deliver four stunning new homes. Situated near the pictures...
STAMP DUTY PAID **** A PRIME DEVELOPMENT SITE WITHIN THE HEART OF RAYLEIGH **** A ready to go site with plans passed for 2 detached bungalow and the potential of phase 2 with a further 3 detached bungalows, and also the benefit to extend the site further (subject to planning) The site...
* Guide Price £450,000 to £500,000 * Bear Land & Developments are delighted to offer for sale this tucked away investment opportunity. Garages can be bought separately. Land adjacent can be optioned or subject to planning permission. Potential rental income for curren...
GUIDE PRICE £375,000 - £425,000 Nestled in the desirable area of Fairview Chase, Stanford-le-Hope, this exceptional plot of land presents a remarkable opportunity for both investors and developers. With planning permission already granted for two sets of apartments, this site is primed f...







































