Commercial Properties For Sale in Taunton, Somerset
Paid partnerships can play a role in listing order
The property comprises a two storey purpose built modern office building arranged with a reception and service core between its east and west wings making it ideally suitable for occupation by a number of different tenants. The offices predominately benefit from the following features:- Sizeable...
Large freehold pub & restaurant in Somerset town centre; Public bar, lounge bar, function room plus games area and commercial kitchen; Internal trade courtyard leads to rear trade garden; Detached skittle alley at rear with scope to develop; First floor four-bedroom accommodation..
- Large freehold pub & restaurant in Somerset town centre
- Public bar for 30, lounge bar for 20 and function room for 25
- Plus games area and commercial kitchen
Residential development site with detailed planning permission (DPP) and listed building consent (LBC) for the redevelopment of the site into 18no. dwellings. Available as a whole, or as 3 separate lots. Lot 1 - farmhouse and barn conversion offers in the region of £5...
A bungalow and a residential development opportunity with a positive Pre-application Enquiry for 2no. dwellings (all open market), together with associated infrastructure works. The site extends, in total, to approximately 0.31-hectares (0.77-acres). For sale by private trea...
A rare opportunity to purchase this attached hall, offering 2 function rooms, a kitchen, a bar, WC facilities, offering a wide range of uses subject to the relevant planning, available with no onward chain, gas heating, double glazing and parking, situated in the county town of Taunton that offers a
Shop with One Bedroom Flat Above and Rear Parking Right in the heart of Taunton, this mixed-use property offers a ground floor shop with a one bedroom flat above, plus rear access and off-road parking. It is a flexible set-up, whether you are looking to run your own business, invest, or combine ...
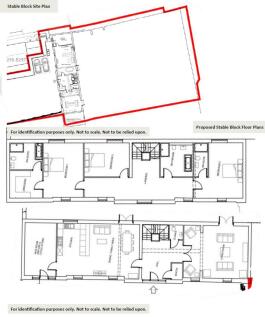
Two development opportunities, one former Mill building and one former Stable Block building, within the Orchard Grove Urban Extension. Both are Grade II listed by association to Comeytrowe Manor. The former Stable Block building benefits from detailed planning permission fo...
Two development opportunities, one former Mill building and one former Stable Block building, within the Orchard Grove Urban Extension. Both are Grade II listed by association to Comeytrowe Manor. The former Stable Block building benefits from detailed planning permission fo...
Two development opportunities, one former Mill building and one former Stable Block building, within the Orchard Grove Urban Extension. Both are Grade II listed by association to Comeytrowe Manor. The former Stable Block building benefits from detailed planning permission fo...


