Commercial Properties For Sale in Wakefield (district of)
A fantastic opportunity to purchase this building that was previously used as a well regarded Barbers shop in Ryhill with the potential the upstairs into a self contained 1 bedroomed apartment. The premises sits prominently on Mill Lane amongst other businesses. The property bri...
This ground floor freehold commercial property is now available for sale in a prominent corner position at the junction of Station Lane and Post Office Road, Featherstone. The property is currently tenanted, generating a rental income of £700 per calendar month, providing an attractive annual yi...
Business For Sale! £45,000 (open to negotiation). A rare opportunity to acquire a well-established and highly rated sandwich shop/café in a thriving residential area of Knottingley. Pinewood Bakery has been serving the community since 1965 and has built a loyal and growing customer base.
A Turnkey Opportunity -Looking for a profitable, well-established business in a bustling area? This is your chance to own a hugely popular, long-established (50 years plus) and thriving fish and chip shop, perfectly located on Leeds Road, Glasshoughton, one of Castleford's busiest main roads.
A rare and exciting opportunity to acquire a residential building plot with planning permission to construct a contemporary two-bedroom detached home over three storeys. Ideally located close to the heart of Wakefield, this site is perfect for self-builders, developers, or investors looking to cr...
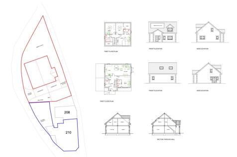
FOR SALE BY AUCTION ON MONDAY 27TH OCTOBER 2025. An exceptional opportunity in Dewsbury. This piece of land was granted planning permission for a three bedroom detached house in 2021. Please see application 2021/62/90209/E on Kirklees Council Website and further details within the legal pack....
This is your chance to take over Lounge 20, a former café/bar that was once a thriving hotspot in Castleford. With over £100,000 invested in renovations, this multi-level venue is packed with potential, requiring just a little TLC and a deep clean to be fully operational again! Business For Sale!