Commercial Properties For Sale in Warrington, Cheshire
LOCATED IN CHESHIRE Turnover of £385,000, with an adjusted EBITDA of £51,000. Retails used cars and vans. Provides in-house valuation and valet services. Offers MOTs, servicing, repairs, recovery, and nationwide delivery through third-party providers. Prides itself on its comprehensi...
PROMINENT LOCATION JUST WEST OF WARRINGTON TOWN CENTREROADSIDE FRONTAGEGROUND FLOOR ACCOMMODATION - 519 SQ.FTFIRST FLOOR ACCOMMODATION - 337 SQ.FTSUITABLE FOR USE CLASS E AND SIMILAREXCELLENT TRANSPORT LINKSPUBLIC CAR PARKING TO THE REARREAR YARD AREACLOSE TO AMENITIES
The property comprises a self-contained detached industrial warehouse, which was extended approximately 10 years ago. The property has recently been comprehensively refurbished and provides the following specification: New LED lighting in the warehouse Internal office decoration Repaint of ...
Brighton House at Trident Business Park offers 6,791 sq ft of newly refurbished office accommodation, providing modern and flexible two-storey open-plan office space. Excellent location with close proximity to the motorway network and a short drive from the shopping centre and Birchwood railway...
Open plan office space available for sale / to let Cat 2 Lighting Intergrated Air Conditioning Full Raised Access Flooring Double Glazed Windows Suspended Ceilings DDA Compliant Perimeter Trunking 24-Hour Access 6 Person Lifts Cinnamon Park is a business park located in Warrington, Cheshire, ...
Industrial / Warehouse Unit For Sale. • Two electric level access loading doors • Recently replaced roof • Office, Kitchen and WC / Shower facilities • Three phase electricity • Mezzanine storage • Workshop area underneath mezzanine • Dedicated car parking The property is access...
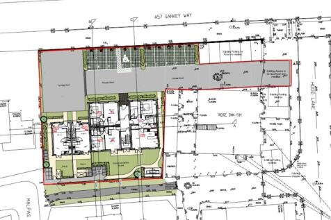
We are pleased to present an exceptional development opportunity comprising four prime roadside sites located in Warrington (three sites) and Knowsley (one site). Spanning a total of 1.53 acres, these sites offer significant potential for re-development, subject to planning (STP). Curre...
PRIME NEW LISTING. We are excited to present this rarely available plot with development potential located within a prime location outside Warrington. Huge 22 acre plot gives excellent potential. Impressive size for guide price This exceptional opportunity is su...
Nestled within the tranquil environs of the historic Moore Hall estate, an exceptional opportunity presents itself in the form of this remarkable conversion opportunity. Situated in the idyllic village of Moore, this detached coach house offers an unparalleled canvas for those seeking to realise ...
Nestled in the heart of Warrington, 56 Church Street presents an exceptional development opportunity for discerning investors. This prime location boasts a high traffic volume, ensuring excellent visibility and accessibility for any future venture. Spanning an impressive 0.22 acres, the site offe...
Nestled in the heart of Warrington, at 394-412 Knutsford Road, this development property presents a remarkable opportunity for investors and developers alike. Spanning an impressive 0.23 acres, we understand that the site has previously had planning permission for the construction of 11 apartment...








