Commercial Properties For Sale by Flude Property Consultants, Chichester, including sold STC
26 results
Paid partnerships can play a role in listing order
The subject accommodation comprises the ground floor of a substantial, three-storey building. The building is of a traditional construction, beneath a pitched slate-tiled road, and incorporates stucco-rendered and painted elevations above a traditional timber-framed shop front. Internally, the g...
The business park is set on a site of 5.12 acres and includes a mixture of self-contained single and two-storey office- buildings (Units 3, 4, 5 & 9) , a modern office courtyard (CY1-5), a children's nursery (Units 6 & 7) and a warehouse building with secure yard (Unit 8). There are 105 designate...
Property Description This central business district mixed-use building comprises a ground floor restaurant with three upper floors of high-quality E Class accommodation. The building has been thoughtfully refurbished throughout and is well-suited for a variety of occupiers seeking open-plan, fle...
The subject accommodation comprises the ground floor of a substantial, three-storey building. The building is of a traditional construction, beneath a pitched slate-tiled road, and incorporates stucco-rendered and painted elevations above a traditional timber-framed shop front. Internally, the g...
The business was founded many years ago by Fred Freije and was very successful. There were 16 lobster fishing boats running out of the Selsey factory. Over the years the number of boats declined and when the factory closed earlier this year there were only 3 boats remaining. Global warming and ov...
The property was recently constructed and occupies a prominent corner position on The Esplanade and is arranged over five floors. The upper floors are configured as five self-contained apartments, which have been sold off on long leases. The restaurant element is accessed via a ground floor lob...
The property comprises of two adjoining, freehold business units, constructed in the mid 1990s. The units are of steel portal frame construction, under a pitched roof with profile sheet metal clad & brick elevations. Unit 15 has the benefit of double height glazed entrance lobby, with Unit 16 ben...
The premises comprise of a self-contained retail unit arranged over two floors. Internally, the ground floor provides open plan sales area, together with storage and staff facilities on the first floor. Externally, there is a small store and rear access. There are three parking spaces to the rea...
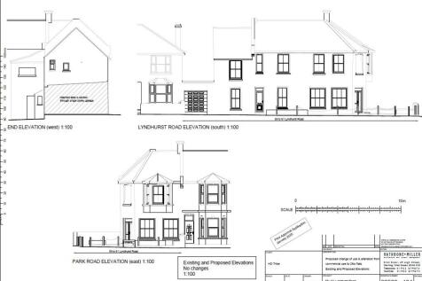
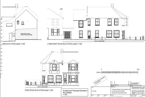
The property comprises an end-of-terrace period building, arranged over two storeys. Elevations appear to be in solid brick, which have been rendered and painted, beneath a pitched and concrete-tiled roof. Internally, the property has been divided horizontally to form two self-contained comme...
Freehold parcel of land with full planning permission granted under application reference 24/02198/FUL by Chichester District Council. The approved scheme allows for the erection of a commercial office unit measuring 88 sqm and the siting of up to 31 storage containers, making this an attractive ...
The subject property comprises a detached building, traditionally constructed over two storeys, plus attic. Elevations are in painted brick, incorporating windows that are a mixture of timber and UPV construction. Internally, the building is presently configured as a vacant former takeaway premi...
This well-presented industrial unit offers a practical and efficient combination of warehouse, storage, and office accommodation, making it well-suited to a variety of light industrial and commercial occupiers. The property benefits from a clear-span unit with an eaves height to haunch of approxi...
The unit comprises an attractive ground floor E Class office/retail space, prominently positioned in the heart of East Wittering town centre. Internally, it offers open-plan accommodation suitable for a variety of uses. Currently presented in shell condition with plasterboard walls and ceiling in...
The property is an attractive period Grade II* listed building over three floors with a basement. The attractive facade with three window bays and flint elevations give the property its name. Behind the facade (where the listed nature of the building is focused) the property had been converted to...
The property comprises of a semi-detached, freehold warehouse/workshop/showroom premises, on a total site of approx 0.86 acres. The units are of steel portal frame construction, under a pitched sheet roof with translucent roof panels and block/clad elevations. Pitched eaves range from 3.31m (ha...














