Commercial Properties To Let in Burley, Leeds, West Yorkshire
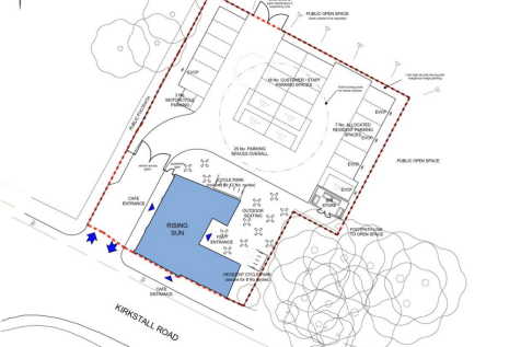
Prominent Grade II Listed Café/Bar Opportunity – Kirkstall Road, Leeds Situated on the busy A65 Kirkstall Road, directly opposite Cardigan Fields Retail Park, this attractive period property offers a rare opportunity to lease the ground floor commercial space with basement. Formerly part...
The accommodation occupies the 1st floor of this two storey brick built commercial building and extends to 136.81m² (1,473ft²). It provides good quality modern accommodation and has the benefit of on-site car parking. The accommodation is accessed a shared entrance lobby and pro...
Rent Free* Incentives Available. A bright and well-presented corner office featuring it's own private corridor and two spacious rooms with large windows. This suite offers an ideal layout for a small team or business seeking a professional and private workspace. 24/7 access and ample parking.






