Commercial Properties To Let in Craigshill, Livingston, West Lothian
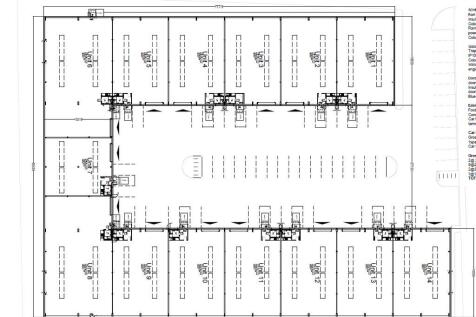
Our client has planning permission for the erection of 14 modern industrial units (class 5) with car parking (52 spaces). Planning reference no: 0474/FUL/23. There are a variety of units available ranging from 2,000 sq ft to 38,000 sq ft all of which will offer modern open plan industrial acc...
The property comprises a self-contained two terrace industrial estate of steel frame construction with a mixture of brick and profile steel clad elevations. Each terrace fronts a central yard and car parking area served by Nettlehill Road.
Modern industrial / trade premises located within the popular Houstoun Industrial Estate, Livingston, West Lothian. Accommodation as follows: Unit 5 1,388 Sq Ft Available £12,500.00 Unit 6 1,391 Sq Ft Available £12,520.00 Unit 8 1,349 Sq Ft Available £12,150.00
Kelvin Square is located within Houstoun Industrial Estate, Livingston, one of Scotland's most established industrial and trade centres. Kelvin Square is located approximately 2.5 miles NorthEast of Livingston's town Centre and is within close proximity to Junction 3 of the M8. The development ...
We are conveniently situated minutes from Junction 3 of the M8, 32 miles East of Glasgow and 16 miles West of Edinburgh, just off of the A899. With Uphall Railway Station, Livingston North & Livingston South Stations, Waverley Station, Edinburgh, Edinburgh Airport and local bus services all provi...
Storage Vault Livingston East offers 50% off for the first 2 months, 24/7 CCTV, no deposit required, all ground floor units and keypad entry. With internal units and external units, Colvilles Place is ideal for all personal and business storage. Get a quote today.





