Shops To Let in Suffolk
The property is a substantial retail premises of steel framed construction, with brick elevations under a flat roof and provides accommodation over two storeys, with a large open plan ground floor sales area, rear storage and lower ground floor storage and loading bay. The site occupies a site of...
The ground floor shop unit is prominently located in the town centre on Smallgate directly opposite New Look and Manor House Lane which links to the Tesco Superstore and the main town car park with approx. 400 spaces. Nearby retailers include Tesco, Fat Face, Holland & Barrett, Tool Station, ...
The property is a former banking hall occupying a prominent position on Newmarket High Street, providing open plan retail / sales space at ground floor level, with first and second floor offices / storage. Kitchen and WCs, accessed via a staircase. There is further ancillary storage to the baseme...
Unit 55 is a good sized ground floor retail unit with first floor ancillary storage and office accommodation. The ground floor is split into two parts being the front retail area with some smaller cellular rooms to the rear. The specification includes: suspended ceiling, painted blockwork walls, ...
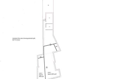
The property is a former banking hall providing open plan retail space and basement storage and occupies a prominent position in Stowmarket town centre. The property has been stripped back to a shell finish allowing flexibility for occupier fit out. The property could potentially be split to prov...
The property is a two storey lock up shop unit, arranged over ground and first floors providing open plan sales space. The property is being comprehensively refurbished including new electrics, lighting, air cooling / heating, re-plastering, decoration, new kitchen and WC facilities. Loading acce...
The ground floor shop unit is prominently located in the town centre on Smallgate directly opposite New Look and Manor House Lane which links to the Tesco Superstore and the main town car park with approx. 400 spaces. Nearby retailers include Tesco, Fat Face, Holland & Barrett, Tool Station, ...
The property is a two storey lock up shop unit, arranged over ground and first floors providing open plan sales space. The property is being comprehensively refurbished including new electrics, lighting, air cooling / heating, re-plastering, decoration, new kitchen and WC facilities. Loading acce...
The property comprises the ground floor of a two-storey former betting office, providing mostly open sales space with ancillary offices, kitchen facilities and a WC. The shop has a glazed double frontage and occupies a prominent position on the High Street. Planning permission has been submitted ...
The property is a retail concession located on the first floor mezzanine to the front of the store, adjacent to the main showroom entrance. The space is rectangular in shape and benefits from suspended ceilings with recessed LED lighting. The area will be ready for tenant fit out and prospective...
Unit 5 is a good sized ground floor retail unit with office, kitchen and WC facilities. The specification includes: suspended ceiling, retail display walls, comfort cooling, carpet tiles and glazed retail frontage. Externally the unit has frontage into the centre of the main shopping area plus a ...
The ground floor shop unit is prominently located in the town centre on Smallgate directly opposite New Look and Manor House Lane which links to the Tesco Superstore and the main town car park with approx. 400 spaces. Nearby retailers include Tesco, Fat Face, Holland & Barrett, Tool Station, ...
Built in 1987, the subject premises is a locally renowned shopping centre in the heart of Lowestoft. In total The Britten Centre offers 19 retail units including Iceland and Poundland. Two shop units within the scheme also benefit from frontage to London ...
TO LET – Prime Commercial Unit in the Heart of Lowestoft High Street Prominent Location | Versatile Layout | Excellent Footfall Occupying a highly visible position on the busy and vibrant Lowestoft High Street, this substantial commercial unit presents an outstanding opportunity for a...
Merchants' Yard blends vibrant urban living with whistle-stop commuting links to the wider region and beyond. A matter of minutes from Ipswich's historic centre, the surrounding area of this exciting waterfront development is poised for an £11m+ investment programme. With up to 173 2,3-or 4-bedro...













