Bungalows For Sale in Braehead, Lanark, Lanarkshire
Twentyeleven Properties are delighted to bring to market Greenacres House, Kaimend, Carnwath. This wonderful four bedroom bungalow with monoblocked driveway, sits proudly overlooking the countryside towards Biggar while surrounded by approx. three acres of land, Stables and storage sheds. This is...
"The Rossyln" which sits on plot 13 has exceptional views and is a luxury 3 bedroom bedroom contemporary bungalow that is approximately 178m2. You are met with a fantastic triple car driveway that leads to the garage and entrance to property. As you enter the front facing door you are m...
"The Bertram" which sits on plot 20 is a luxury 3 bedroom bedroom contemporary bungalow that will be finished with a lovely stepped gardens to the rear with complete privacy at the back and exceptional views from the front. You are met with a fantastic triple car driveway that leads to ...
‘’The Tinto’’ which sits on Plot 19 is currently used as the Show Home within the development is a fantastic opportunity to acquire a contemporary luxury bungalow set within what will be one of the most attractive and private rural developments. Plot 19 has a beautifully finished stepped gardens ...
‘’The Tinto’’ which sits on Plot 18 within the development is a fantastic opportunity to acquire a contemporary luxury bungalow set within what will be one of the most attractive and private rural developments. Plot 18 will have beautifully finished stepped gardens with complete privacy at the ba...
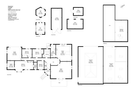
This spacious four-bedroom detached bungalow is set within a desirable semi-rural location on the outskirts of Lanark, offering peace, privacy, and breathtaking views over the surrounding countryside. The home provides generous and versatile accommodation throughout, perfectly suited to a range o...