Bungalows For Sale in Chester Le Street, County Durham
This two-bedroom semi-detached bungalow is situated in the highly sought-after Kingsmere location. A McCullough-built property, the bungalow offers spacious rooms and features gardens to the front and rear, a long block-paved drive providing ample parking, and a large 22ft garage. The attractive ...
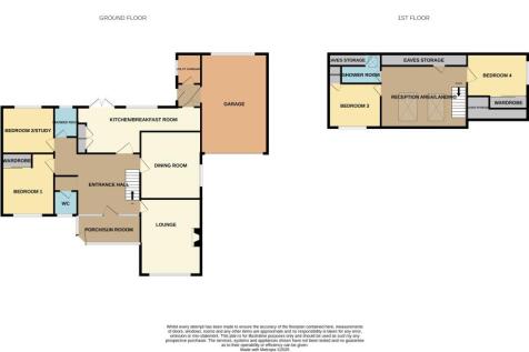
Presenting for sale this immaculate detached bungalow situated in the sought-after Whitehill Hall area of Cragside, Chester Le Street. The property offers a versatile layout, providing four bedrooms and three bathrooms, making it an appealing choice for families and those seeking gener...
A truly exceptional opportunity to acquire a beautifully refurbished and elegantly extended four-bedroom detached home, perfectly positioned on the highly desirable Blind Lane in Chester Le Street. This outstanding home has been finished to an impeccable standard throughout, offering an impressiv...
Welcome to this stunning four-bedroom semi-detached bungalow, proudly offered for sale on the sought-after Arcadia Avenue in Chester-le-Street. Sitting within a peaceful and well-established residential area, this home presents an exceptional opportunity for a wide range of buyers seeking a spaci...
Proudly presenting for sale this immaculate detached bungalow, a truly exceptional home that has undergone a comprehensive refurbishment to an outstanding modern standard. Situated in one of Chester le Street’s most sought after locations, this property offers not only luxurious living acco...
Detached Dormer Bungalow with Driveway and Generous Garden Set on a peaceful street in a popular part of Chester-le-Street, this beautifully presented dormer bungalow combines modern finishes with a flexible layout — perfect for those seeking comfort and space on both levels. Inside A gravelled...
A highly individual modern property set within a small and exclusive courtyard. This spacious bungalow offers unique accommodation and has the additional benefit of a large first-floor bedroom and en-suite bathroom. Accessed via an archway and clock tower, this newly refurbished property lies wi...
A highly individual property set within a small and exclusive courtyard. This immaculately presented, spacious bungalow offers unique accommodation and has the additional benefit of a private westerly facing back garden with an open aspect. Accessed via an archway and clock tower, the property li...
Situated in the highly regarded southern end of town, Hermitage Park is a cul-de-sac development with houses and bungalows which offer exceptional room sizes and layouts. 13 Hermitage Park occupies a great plot at the head of a cul de sac, with good size gardens including a westerly facing back g...
Tucked away at the head of a small cul de sac within this highly regarded modern development, this immaculate semi detached bungalow is beautifully presented and ideally positioned, occupying a pleasant plot with a large 23ft detached garage, ample parking and a westerly facing back garden which ...
*55's AND OVER ONLY* Presenting this neutrally decorated semi-detached bungalow available for sale in a highly sought-after location. This property is perfectly situated with convenient access to public transport links, local amenities, and nearby schools.
Located in one of the town's most sought after estates, this semi detached bungalow occupies a good-sized corner plot and is accessible to local shops on the estate and numerous amenities in the nearby town centre. The property includes a large attached 21ft garage with a remote-controlled door, ...
This two-bedroom semi-detached bungalow is situated in the highly sought-after Kingsmere location. A McCullough-built property, the bungalow offers spacious rooms and features gardens to the front and rear, a long block-paved drive providing ample parking, and a large 22ft garage. The attractive ...
For sale via Modern auction T&C's apply This semi-detached bungalow in the desirable garden farm estate of Chester le Street offers two bedrooms, a charming garden, and potential for modernisation, making it an excellent opportunity for first-time buyers, families, or investors, with no ...
This extended two-bedroom semi-detached bungalow is situated in the highly sought-after Kingsmere location. A McCullough built property, the bungalow offers spacious rooms and features gardens to the front and rear, a long drive providing ample parking, and a large 21ft garage. The bungalow has b...













































































































































