Semi-detached Houses For Sale in Cobhall, Hereford, Herefordshire
'Situated in the sought after village location of Madley a superbly presented three bedroom semi detached cottage which has been extended to provide superb living accommodation with off road parking, enclosed gardens, gas central heating and double glazing'
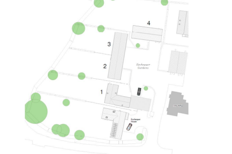
Welcome to Exchequer Gardens Constructed to an exacting standard by Buchanan Properties, this exciting development mixes traditional design with contemporary touches and enjoys a slightly elevated position with some fine views over the surrounding landscape. Offering plenty of light and ...
Welcome to Exchequer Gardens Constructed to an exacting standard by Buchanan Properties, this exciting development mixes traditional design with contemporary touches and enjoys a slightly elevated position with some fine views over the surrounding landscape. Offering plenty of light and ...
Situated south of Hereford city, a beautifully presented older style three bedroom semi with large gardens, parking, a large garden and beautiful countryside views. The property which has been renovated throughout would make a fantastic family home and a viewing is highly recommended.
'Situated in the sought after village location of Madley a superbly presented three bedroom semi detached cottage which has been extended to provide superb living accommodation with off road parking, enclosed gardens, gas central heating and double glazing'
The Longleat is a three bedroom open plan home with the master bedroom having its own en-suite , two further bedrooms and a family bathroom. The Longleat also benefits from off road parking for 2 cars. Built around a courtyard setting of just 10 Homes by Bell Homes a family business renow...
The Sudley is a three bedroom open plan home with the master bedroom having its own en-suite, two further bedrooms and a family bathroom. The Sudley also benefits from off road parking for 2 cars. Built around a courtyard setting of just 10 Homes by Bell Homes a family business renowned...
Nestled on the outskirts of the charming village of Kingstone, Hereford, this delightful semi-detached cottage offers a perfect blend of traditional character and modern convenience. With its picturesque setting the property is ideal for those seeking a tranquil lifestyle while remaining well-con...
***NEW HOME***NO SERVICE CHARGES*** Introducing plot 29, The Bewdley. This stunning three bedroom semi-detached family home is located within the serene village of Madley, Hereford, HR2 9PJ in the Faraday Gardens development by local developer Bell Homes. Faraday Gardens is a development of thir...
Situated in this popular village location, an immaculately presented modern three bedroom semi detached home offering ideal first time buyer/ family accommodation. With the benefit of gas central heating, double glazing and driveway parking, the property comprises a spacious lounge, downstairs W/...
'Situated to the south of Hereford City in the popular village location of Clehonger a three bedroom semi detached family home which has been extended downstairs to provide a shower and cloakroom. The property also has the added benefit of off road parking and enclosed rear and side gardens&...
This lovely semi-detached family home is located in a popular residential location south-west Herefordshire village of Clehonger. This beautiful home offers great size living space and a well-maintained garden to the rear. With the added benefit of solar panels.
A semi detached property which is pleasantly located just outside the village of Clehonger about 4 miles south west of the cathedral city of Hereford, backing onto open farmland with lovely views. Within Clehonger there is a shop/post office, public house, village hall, bus service, chur...





































































































