Properties For Sale in Cooks Green, Clacton-On-Sea, Essex
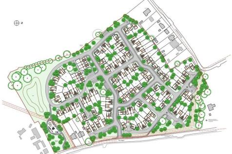
PLANNING PASSED FOR 98 HOMES- This outstanding development opportunity is situated in the highly sought after Weeley in Little Clacton boasting full planning permission for 98 units including three, four, five bedroom houses and bungalows. There is a pre app currently in to add an extra 24 units ...
Auction Sale - 24/11/2025 - To book viewings, view the legal pack and register to bid please refer to the full sales particulars on the Savills Auctions website A substantial eight bedroom three storey detached house with outbuildings, a swimming pool and grounds. Approximately 8,114 sq ft ...
Welcome to Gutteridge Hall ***POTENTIAL EQUESTRIAN PROPERTY*** Nestled in picturesque countryside on the outskirts of Weeley, being tucked away at the end of a private lane and entered via an impressive carriage driveway and electric gates. Gutteridge Hall is a modern 2700 sq ft country home,...
"Mill House" is a GORGEOUS DETACHED CHARACTER HOUSE set on an established 3/4 acre plot complete with OUTDOOR HEATED SWIMMING POOL & STABLE BLOCK. This much loved family home is located in a desirable tree lined lane in the village of Weeley Heath with farmland to the rear. The property benefits ...
This impressive detached new build combines countryside charm with modern luxury on a plot of approximately 0.45 acres. Set behind a spacious gated driveway with a double garage, its grand yet picturesque exterior is complemented by idyllic field views opposite. At its heart lies a stunning 35'0 ...
**Guide Price £700,000-£750,000** A sensational grade II listed 17th Century home fused with contemporary modern extensions to offer a one off home with flexible accommodation to suit families through to retirees. Stone hall was originally two cottages and over the years has been c...
*GUIDE PRICE £700,000 - £750,000* Welcome to a spectacular Grade II listed four-bedroom home that elegantly marries historic beauty with modern functionality. Originally two 17th-century cottages, it has been transformed into a spacious 2,500 sq. ft. dwelling seamlessly fused with conte...
VILLAGE LIVING FOR A LARGE FAMILY ! A beautifully presented detached family home having been rebuilt in 2001-2002 and now offering spacious and well appointed accommodation on two floors totalling approximately 2800sq ft. The property has been maintained in excellent order throughout by the curre...
A beautifully reimagined family home in the highly desirable semi-rural Weeley, offering modern efficiency and timeless comfort. Rebuilt between 2001–2002 and meticulously maintained, the property combines thoughtful design with contemporary upgrades, including an air source heat pump and a h...
Set back from the road on a plot of approximately 3.2 acres lies 'Montana'. This three-bedroom detached bungalow offers a rare opportunity to create something truly special. Although requiring modernisation throughout, the property provides a solid footprint with endless scope for improvement. Th...
The Brambles is one of just five detached three-bedroom homes, tucked away at the end of a private road and built by double award-winning developer Bocking Homes. With its long driveway and uninterrupted field views, this property perfectly combines elegance with tranquillity. Inside, ...
** SHOW HOME - AVAILABLE WITH FURNITURE BY SEPARATE NEGOTIATION ** The Brambles is one of five detached 3-bed homes secluded at the end of a private road, built by double award-winning developer Bocking Homes. With a long driveway to the front and field views, The Brambles is the epitome of peace...
''Guide Price £550,000-£575,000''.'Blackthorn' is one of five detached 3-bed homes secluded at the end of a private road, built by double award-winning developer Bocking Homes. With a generous driveway to the front and field views, The Brambles is the epitome of peaceful living. This ele...
***GUIDE PRICE £550,000 - £575,000*** One of just five detached three-bedroom homes, tucked away at the end of a private road and built by double award-winning developer Bocking Homes. With its long driveway and uninterrupted field views, this property perfectly combines elegance...
'Connaught Fields' An exclusive new development of seven detached Chalet bungalows, each thoughtfully designed to combine modern living with comfort and style. Due for completion Winter 2025, each property features an open-plan kitchen, living and dining area, complete with high-quality integrate...
** NOW READY TO VIEW! ** 'Connaught Fields' An exclusive new development of seven detached Chalet bungalows, each thoughtfully designed to combine modern living with comfort and style. Due for completion Winter 2025, each property features an open-plan kitchen, living and dining area, complete wi...
**LAST REMAINING HOME**ZERO ENERGY BILLS FOR AT LEAST 10 YEARS** This stunning detached bungalow with garage, has a south facing garden, is finished to a very high specification though out and features a stunning glass vaulted living area.
Spacious and versatile 4-bed detached home in sought-after Weeley Heath. Features include a large garden, annex, off-road parking and excellent access to Clacton, Colchester, and local transport. Ideal for families or home-based professionals.
** GUIDE PRICE ** £500,000 - £550,000 ** Nestled along the popular Clacton Road, this well-maintained three bedroom detached bungalow offers generous living space and a prime location close to local amenities, making it perfect for families, downsizers, or anyone seeking comfortable coastal living.

















































































































































































































































































































































































































































































































































































