Properties For Sale in Harraby Green, Carlisle, Cumbria
Charming two-bedroom terraced house with a living room, kitchen, and ground floor bathroom. Generous rear yard with a useful outbuilding. Close to amenities, city centre, and University of Cumbria. In need of some updating, ideal for first-time buyers or buy-to-let investment.
Long established 8 bed guest house for sale due to retirement. Prominent location on the A69 between the city centre and M6 motorway. Requiring modernisation the property has significant potential to improve occupancy and return on investment. On site parking. Well placed for the Lakes, Coast and...
Nestled in this hidden cul-de-sac is a splendid detached family home boasting an abundance of charm, tailored to the discerning family seeking both ample living space and practicality. An immaculate family home with a modern kitchen, stylish bathrooms and a great layout - on a quiet but ...
An immaculately presented three bedroom mid-terraced property with additional two loft rooms, is immaculately presented throughout. Benefitting from two reception rooms and two bathrooms, the property briefly comprises entrance hall, sitting room, lounge with wood burning stove, a fitted kitch...
A three bedroom semi on the popular area of London Road Carlisle, close to amenities and transport routes. The accommodation offers entrance hallway, living room, dining room, kitchen. To the first floor are three bedrooms and a family bathroom. Externally is a front garden, and to the rear is an...
Welcome to 71 Greystone Road, a splendid home within walking distance of the City Centre that represents an outstanding opportunity for first time buyers and families alike. This superb three bedroom house is presented to the market in immaculate order throughout and with the advantage of no o...
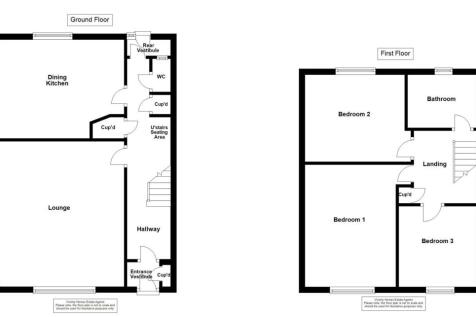
Located in the popular London Road area is this three bedroom semi detached property with side parking and separate garage. The accommodation offers entrance hallway, living room, kitchen and side porch. To the first floor are three bedrooms and a family bathroom. Externally is a driveway and sep...
Presenting a spacious end terrace family home in a popular side street near the city centre. This well-presented property features a living room, dining room, kitchen, three bedrooms, and a first-floor bathroom. With a generous yard and LARGE GARAGE to the rear, it offers ample space and convenie...
Vicinity Homes are delighted to offer to the market this immaculately presented & deceptively spacious, three bedroom mid link house situated within a popular residential area to the East of Carlisle City Centre. The property is close to a range of local amenities, regular bus route, popular Prim...
Situated just off London Road, a three bedroom, two reception room, corner terraced property with attic room situated within close proximity to an abundance of amenities, schools, gym and transport links. The double glazed and gas central heated accommodation briefly comprises entrance hall, l...
This three double bedroom, two reception room semi-detached property, sold with the benefit of no onward chain, is gas central heated, double glazed and briefly comprises entrance vestibule, entrance hall, two reception rooms and fitted kitchen. To the first floor there are three double bedroo...
If you're looking to take your first step onto the property ladder then 18 Vasey Crescent must be added to the top of your 'to view' list. Featuring a bright living room, stunning kitchen and a three piece bathroom on the ground floor, two double bedrooms on the first floor, driveway pa...
Forget The Fixer-Uppers - This Is Perfect For First Time Buyers & Families Who Don’t Want To Lift A Finger. With 3 bedrooms, a bonus loft room and a gorgeous kitchen and bathroom, this recently updated mid-terrace looks the part and feels brand new. Property ref: KD0516
A generously proportioned two double bedroom, two reception room terraced property located in a popular location just off the city centre close to many amenities. Being sold with no onward chain, this is ready to put your own stamp on and will be an ideal first time buy or potential rent...
A well presented two bedroom end terrace property on Oswald Street, close to City Centre. The accommodation consists of living room, kitchen, inner hallway, bathroom. To the first floor are two double bedrooms. Externally there is residential on street permit parking, to the rear is a yard with s...
This neutrally decorated first-floor flat, featuring two bedrooms, a well-appointed kitchen, and convenient on-street parking, is an attractive investment opportunity with a sitting tenant, located close to the city centre and boasting excellent transport links and nearby amenities.





















































































