Auction Properties For Sale in Harrow (London Borough)
On the market for the 1st time in over FORTY YEARS is this STUNNING CHARACTER FILLED DETACHED DOUBLE FRONTED family home located on this wonderful wide tree-lined residential turning. Offering a vast amount of entertaining space over three large reception rooms along with a huge south facing fron...
Being sold via Secure Sale online bidding. Terms & Conditions apply. Starting Bid £1,375,000 On the market for the 1st time in over FORTY YEARS is this STUNNING CHARACTER FILLED DETACHED DOUBLE FRONTED family home located on this wonderful wide tree-lined residential turning. Offering ...
TO BE OFFERED BY ONLINE AUCTION ON THE 03/12/2025 10:40 - On Behalf of the Court Appointed Receiver: 7 Bedroom Detached House On the market over 30 years since it was last sold this represents fantastic opportunity for a buyer to acquire a detached house with 7 bedrooms with over 3,000 sq. ft of...
Auction Sale - 24/11/2025 - To book viewings, view the legal pack and register to bid please refer to the full sales particulars on the Savills Auctions website Of interest to investors. A newly refurbished freehold HMO property comprising of 6 self contained studio flats.We understa...
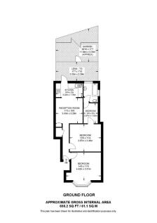
For sale via secure sale online bidding - terms and conditions apply. We are pleased to offer to the market Large end-of terrace house which has been converted into one bedroom ground floor flat with large garden, ground floor studio, first floor one bedroom and first floor 2 bedroom with ten...
Substantial three bedroom end of terrace family home with delightful private garden, ideally situated in a sought after residential location close to transport links, Church Fields park and local amenities. The property offers bright and spacious accommodation arranged over two floors, with exce...
*C2 LICENSED* A Three Bedroom Semi-Detached Building with a Rare C2 License Versatile Potential for Care Home, Residential Institution, or Specialist Housing Use. The property comprises a three-bedroom, two-reception room semi-detached building, offered with the benefit of a rare C2 License. Thi...
Auction Sale - 24/11/2025 - To book viewings, view the legal pack and register to bid please refer to the full sales particulars on the Savills Auctions website A three bedroom semi-detached house, benefitting from a rear patio/garden and garage. Well located for the amenities of Streatfiel...
This three bedroom family home is ideal for those looking to put their own stamp on it with scope to extend STPP. The property benefits from off street parking, a garage and a rear garden. Drake Road is just a short distance from Rayners Lane High Street with its vast array of shops, e...
This three bedroom family home is ideal for those looking to put their own stamp on it with scope to extend STPP. The property benefits from off street parking, a garage and a rear garden. Drake Road is just a short distance from Rayners Lane High Street with its vast array of shops, e...
*YET ANOTHER PROPERTY SOLD FOR £484,000 VIA SWIFT PROPERTY AUCTIONS, SIMILAR REQUIRED* By Order Of The Executors & First Time to The Market in 37 Years - A Freehold Three Bedroom Semi-Detached House in Need of Refurbishment The property comprises a three bedroom semi detached house arrange...
**For Sale By Public Auction 10th December 2025 09:30 AM To inspect the legal documents for this property go to our website to download the legal pack** A Vacant Three Bedroom End of Terrace House Freehold Guide Price = £380,000+ Location The property is...
For sale through Auction on Monday 8th December 2025 Nestled in the desirable area of Merlin Crescent, Edgware, THIS SEMI-DETACHED PART FREEHOLD PROPERTY (1ST & 2ND FLOOR ONLY) presents a unique investment opportunity. Originally a three-bedroom family home, the property has been though...
For sale by Online Auction - Spacious 3 bedroom duplex apartment in desirable London suburb- to be sold at auction; please register on website for bidding and legal pack. This spacious 3 bedroom duplex apartment is ideally located just 0.2 miles from Queensbury Station (Jubilee Line). Arra...
**Chain Free** Well presented two bedroom flat with no onward chain, set within a popular development close to transport links and amenities. The property represents an ideal purchase for homeowner or investor, with bright and spacious accommodation laid out with modern interiors and neutral fi...
Situated on Stonegrove and being within walking distance of Edgware high street shops, restaurants and The Boardwalk shopping centre is this three bedroom purpose built flat. In addition to the three bedrooms the flat offers a bathroom, lounge and fitted kitchen with access to the open balcony...





































































































