Auction Properties For Sale in Kingsway, East Sussex
Auction date - 19/11/2025 & 20/11/2025. Internally arranged to provide Three Self-Contained Flats, Comprising Two x 3 Bedroom Flats and One x 2 Bedroom Flat, Total GIA of Flats approximately 279.7 sq m (3,011 sq ft), Possible Potential for Extensions, subject to consents , Front and Rear Gard...
FOR SALE BY AUCTION 10th DECEMBER 2025 A rare opportunity to acquire a substantial four-storey freehold building in the heart of Hove, perfectly positioned on the ever-popular Church Road. Spanning over 2,700 square feet, this versatile mixed-use property comprises two spacious resident...
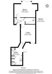
GUIDE PRICE £290,000 Considered to be one of the best kept and prestigious purpose-built developments in Hove; Victoria Court certainly lives up to the accolade. This two-bedroom mid-century apartment sits elevated on the eighth floor where its high ceilings and generously propo...
Auction Sale - 22/10/2025 - To book viewings, view the legal pack and register to bid please refer to the full sales particulars on the Savills Auctions website A one bedroom first floor flat situated in a converted terrace building, benefitting from a new lease on completion, in need of mo...
FOR SALE BY AUCTION 10th December 2025 (potential to purchase pre-auction) Located in a desirable residential area, this well-presented two-bedroom patio garden flat offers an excellent opportunity for both investors and first-time buyers alike. With an approximate internal area of 545.3...






























































































































