Detached Houses For Sale in Meriden, Coventry, Warwickshire
A stunning Georgian Grade II Listed family house with far reaching views and gardens extending to 6.14 acres. Further land and building available (7.65 acres) with a guide price of £175,000. Tucked away on a country lane in the historic village of Meriden, Meriden House is an outstanding Grade I...
Situated in an exclusive gated development of just seven properties and being ideally located for access to Meriden village centre and with excellent access to the A45, M42, M6 and NEC is this handsome family home which was originally built by Charles Church in 2001.
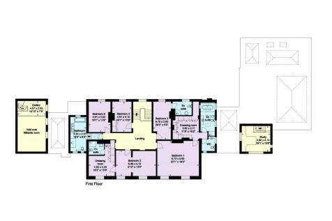
Chantry, is an impressive, well-proportioned, 5 double-bedroom, executive, detached, family residence, benefitting from a self-contained annexe, extending to in-excess of 3,625 square feet over 2 storeys. Presented to the very highest standards throughout and being peacefully, yet conveniently...
** NEW PRICE** A super-spacious, 5/6 bedroom extended detached family house located in a sought-after, semi-rural location. Placed on a large plot with field views and extensive rear garden. Generous living accommodation, large open-plan kitchen/breakfast, large lounge, ideal annexe accommodation...
A three bedroom cottage located in the sought after village of Meriden. The property is located close to shops and amenities and is well connected to both Coventry and Birmingham The property comprises of; entrance hallway, lounge, dining room and kitchen to the ground floor. On the firs...
This very well presented four bedroom detached property overlooks open countryside to the rear and has been remodelled & refurbished to provide a ready to move into family home. Being well located for access to Meriden village centre and set back from the road behind a wide driveway the property....
A spacious three-bedroom detached home set in a desirable village location, featuring private driveway, garage for secure parking, lounge with bay window and gas fireplace, open-plan kitchen/dining area with garden access, three generous bedrooms, two with fitted wardrobes, no upward chain.
















































































































































































