Auction Properties For Sale in Norwood, South East London
Please refer to auctioneer for more information **For Sale By Public Auction 12th November 2025 09:30 AM To inspect the legal documents for this property go to our website to download the legal pack** A Vacant Three Bedroom Semi Detached House in Shell Condition
Nestled in a serene cul-de-sac, this spacious three-bedroom family home is conveniently located near the lively amenities of the Crystal Palace Triangle. Residents will appreciate the excellent transport links, access to reputable schools, and a variety of popular green spaces that enhance the ne...
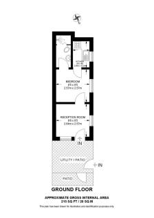
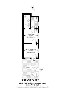
Nestled on the charming Elmcourt Road in London, this delightful flat conversion offers a perfect blend of comfort and convenience. Spanning 508 square feet, the property features two bedrooms, making it an ideal choice for couples, small families, or professionals seeking a serene retreat in the...
Being sold via Secure Sale online bidding. Terms & Conditions apply. Starting Bid £325,000. Nestled on the charming Elmcourt Road in London, this delightful flat conversion offers a perfect blend of comfort and convenience. Spanning 508 square feet, the property features two bedrooms, ma...
Please refer to auctioneer for more information **For Sale By Public Auction 12th November 2025 09:30 AM To inspect the legal documents for this property go to our website to download the legal pack** A Vacant Five Room Mid Terrace House. Potential for a Loft Conve...
Please refer to auctioneer for more information **For Sale By Public Auction 12th November 2025 09:30 AM To inspect the legal documents for this property go to our website to download the legal pack** A Vacant Four Room End Of Terrace House. Potential for a Loft Co...
Offered to the market in immaculate condition is this truly stunning one bedroom conversion flat amassing over 650 sq ft and positioned in prime location for local amenities, South Norwood Lake and Norwood Junction. This charming home boasts a large reception room with a separate modern kitchen, ...
FANTASTIC INVESTMENT/FIRST PURCHASE. SPACIOUS TWO BEDROOM GROUND FLOOR FLAT OFFERED WITH NO ONWARD CHAIN. The property briefly comprises communal entrance hall, front door to entrance hall, good size living room, private balcony, fitted kitchen, two double bedrooms, bathroom and privat...
This property is for sale by the Modern Method of Auction, meaning the buyer and seller are to Complete within 56 days (the "Reservation Period"). Interested parties personal data will be shared with the Auctioneer (iamsold). If considering buying with a mortgage, inspect and consi...
We are pleased to offer for sale this absolutely stunning Ground Floor Split level Period conversion flat on a popular and quiet road within South Norwood. Prince Road is conveniently positioned, walking distance between two train stations with access from Selhurst and Norwood Junction to both Vi...
Two Bedroom Top Floor Period Conversion in South Norwood. Being sold vacant possession. Location is everything, and this residence offers the best of both worlds. Within easy reach of Norwood Junction station, commuting to various destinations in and around the city becomes effortless. Th...
**For Sale By Public Auction 10th December 2025 09:30 AM To inspect the legal documents for this property go to our website to download the legal pack** A Vacant One Bedroom Third Floor Flat Leasehold. The property is held on a lease with approximately 61 ye...




































































