2 Bedroom Houses For Sale in RM9
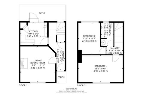
Carter & Willow offer for sale this beautifully presented 2 bedroom circa 781 sq ft end of terrace house which offers an approx 79'4 x 20'8 private rear garden with 13'5 x 9'8 summer house, approx 20'4 x 19'1 driveway with parking for multiple vehicles and side access to the rear.
At a Guide Price of £350,000 - £375,000, Steps are delighted to offer for sale this extended two bedroom family home, conveniently located off Parsloes Avenue, so therefore within easy reach of Sydney Russell School, Parsloes Park, local transport and shopping facilities. To the ground floor the ...
This terraced house in Dagenham presents an excellent opportunity for both investors and homebuyers. Located just 0.4 miles from Dagenham Heathway underground station, it offers easy access to central London and surrounding areas. The property features two double bedrooms on the first floor, prov...
Auction Sale - 21/10/2025 - To book viewings, view the legal pack and register to bid please refer to the full sales particulars on the Savills Auctions website A two bedroom mid terrace house, benefitting from off road parking and a rear garden, in need of modernisation, well located for a...