Flats For Sale in Regent's Park, London
A bright and spacious fifth-floor apartment set within a prestigious period building located moments from Regent's Park. Spanning approximately 1,357 sq ft, the apartment comprises a spacious double aspect reception room, eat-in kitchen, principal bedroom with en suite shower room, further bedro...
Positioned within the highly regarded Ivor Court, this charming one-bedroom apartment offers a superb location just moments from Regent’s Park and the vibrant amenities of Marylebone. The property features a spacious and inviting reception room, a separate fitted kitchen, a well-...
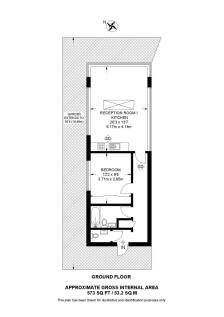
A well-presented one bedroom apartment located on the lower ground floor of a period conversion. Boasting a bright reception room with an open plan kitchen with integrated appliances, abedroom with fitted wardrobes and a separate bathroom. The property further benefits from a wooden fl...
Welcome to this charming apartment located in Lorne Close, London. This purpose-built property boasts a delightful reception room, perfect for entertaining guests or simply relaxing after a long day. With one spacious bedroom, this apartment offers a cosy retreat from the hustle and bustle of the...
A one bedroom apartment requiring modernisation, located on the sixth floor of a prominent, purpose built block benefiting from 24 hour porters and lift access. The property comprises one reception room, separate kitchen, bedroom and a bathroom. Ivor Court is located on Glo...
Superbly situated in the heart of London, a spacious one bedroom first floor apartment set within an impressive, portered (24 hours), enfranchised mansion block just moments from Marylebone and Baker Street stations, and Regent's Park South entrance. Located at the back (quiet side) of the buildi...