Land For Sale in Renfrewshire
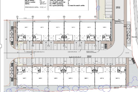
Countrywide are delighted to present a fantastic opportunity to revitalise a long-derelict plot with a contemporary residential development that meets the growing demand for affordable, sustainable housing in Paisley. With strong transport links, excellent local amenities and clear planning guida...
**************** PRICE CHANGE *************** Rarely available with detailed planning permission for four detached villas extending to circa 1600 sq.. ft. offers an excellent opportunity to the small builder to build a small bespoke development ideally located minutes from the local sch...
** Timed Online Auction - 04 December 2025 ** **INCREDIBLE RARE and UNIQUE PRIME PURCHASE* Vacant Land Site area 0.80 Hectares (1.99 Acres) Suitable for a variety of uses subject to planning. EXCELLENT LOCATION close proximity to Glasgow airport.
FOR SALE BY ONLINE AUCTION WEDNESDAY 17TH OF DECEMBER 2025 AT 9AM - ***EXCEPTIONAL OPPORTUNITY TO ACQUIRE A PROMINENT PARCEL OF LAND SITUATED ON THE WELL-CONNECTED AND HIGHLY SOUGHT-AFTER KING'S INCH ROAD IN RENFREW***CLOSE TO THE VIBRANT RETAIL AND LEISURE HUB OF BRAEHEAD***EXCELLENT TRANSPORT L...









