Terraced Houses For Sale in Scarborough, North Yorkshire
Located in Scarborough’s historic Old Town, just below St Mary’s Church and Scarborough Castle, this exceptional coastal property enjoys a prime position with truly impressive views. Fully renovated and modernised in 2022, the house offers a contemporary finish alongside enhanced insulation throu...
An excellent HMO property in Scarborough, available CHAIN FREE, ideal for INVESTORS. Call for details! Bettermove are proud to present this 24 bedroom house of multiple occupants in Scarborough available with no forward chain.The property benefits from double glazing a...
+++Investment Gem: Bay House - Scarborough's Premier Victorian Seafront Property... Nestled just off Scarborough's coveted Esplanade, Bay House emerges as an exceptional Victorian residence boasting breath-taking sea views and a lucrative investment opportunity. A stone's throw from South Bay and...
Prominently positioned just off Scarborough’s sought-after Esplanade, Bay House is an impressive Victorian property with stunning sea views, presenting a unique investment opportunity. The house is just minutes from South Bay, and Cliff lifts take you straight down to The Spa. There is one existi...
A FANTASTIC OPPORTUNITY to acquire this IMPOSING GRADE II LISTED REGENCY TOWN HOUSE which is currently utilised as a SUPERIOR GUEST HOUSE comprising of SEVEN LETTING ROOMS (5 with EN-SUITES) together with SPACIOUS PRIVATE OWNER'S ACCOMMODATION, FANTASTIC SEA VIEWS and a STUNNING WALLED GARDEN.Tal...
Hunters Exclusive are pleased to present this substantial four-storey home, offering an impressive amount of space and versatility across multiple levels. It is ideally suited to families, multi-generational living, or anyone seeking generous accommodation with excellent separation of room functi...
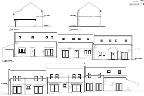
This exceptional stone-built home has been designed with modern living and energy efficiency at its heart. Nestled within a private development of just four properties, it combines elegant design with practical features, including underfloor heating, an air source heat pump, off-street parking, a...
This impressive Victorian six bedroom townhouse offers generous and versatile accommodation set across multiple levels, making it an ideal choice for multi-generational living or as a substantial holiday let. Located within a sought-after conservation area, the property blends period charm with m...
SITUATED IN THE EVER POPULAR SCALBY VILLAGE THIS FOUR BEDROOM FAMILY HOME HAS UNDERGONE A DRAMATIC SCHEME OF MODERNISATION AND IMPROVEMENT IN RECENT YEARS. THIS SYMPATHETIC RESTORATION HAS BEEN CLEVERLY DONE COMBINING MODERN FITTINGS YET STILL RETAINING THE PERIOD FEATURES AND CHARACTER OF THE HO...
This exceptional stone-built property, constructed in 2025, is set within an exclusive private development of just three homes. Occupying a generous corner plot, it features a landscaped frontage and private driveway, offering ample off-street parking. Designed with modern living and ene...
An exceptional, newly built stone property offering stylish, energy-efficient living in a prime location. Situated within an exclusive development of just three homes, this beautifully designed residence combines high-quality finishes with thoughtful layout and sustainable features. The ...
Located on Queen Street in Scarborough town centre, this impressive property presents a remarkable opportunity for investors . With a generous nine bedrooms and eight bathrooms, this fully licensed House in Multiple Occupation (HMO) will make a great investment. Recently painted and dec...
A delightful character cottage which provides a deceptive level of accommodation, together with pretty gardens and off street parking with detached garage. 16 Main Street is situated in the heart of Seamer village, within easy walking distance to many of the amenities which serve this popular v...
+++Welcome to West Street, an impressive and beautifully presented five-bedroom terraced home, perfectly situated in a sought-after area of Scarborough. This property is ideally located near a wide array of local amenities, schools, shops, and convenient public transport links, providing easy acc...
+++Discover Coastal Perfection at 'The Crab' in Scarborough's Old Town… Seeking an exquisite coastal retreat where no detail has been overlooked? Welcome to 'The Crab,' a stunning property nestled in the historic heart of Scarborough's Old Town. This isn't just a house; it's a masterpiece of mode...
Arguably the finest home we’ve had the pleasure of marketing in this exceptional Old Town Quarter location, just a hop, skip and a jump from Scarborough’s South Bay Beach, harbour, and vibrant attractions. This superbly maintained and beautifully presented Georgian Grade II listed tow...
+++Liam Darrell Estate Agents are delighted to offer this versatile opportunity to purchase a SUBSTANTIAL HOME located within the heart of Scarborough Town Centre. The Vendor(s) of this property are currently operating as a successful holiday let, however, this property could also serve as the pe...
+++Liam Darrell Estate Agents are pleased to bring to the market this FANTASTIC RESIDENTIAL or BUSINESS OPPORTUNITY situated on the SOUGHT AFTER North Side of Scarborough. Currently being run as an AIR B’N’B ROOM ONLY HOLIDAY LET, this IMMACULATE property has been the subject to a QUALITY REFURBI...
+++This GRADE II LISTED, FOUR BEDROOM DWELLING provides SUBSTANTIAL LIVING ACCOMMODATION over THREE FLOORS with an OCCASSIONAL ATTIC BEDROOM, CELLAR/WORKSHOP/UTILITY, TWO RECEPTION ROOMS, SEPARATE WC & SHOWER ROOM and a REAR GARDEN. We feel this property provides a versatile approach to either su...












































