Detached Houses For Sale in Titchfield Common, Fareham, Hampshire
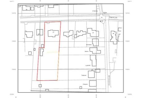
Plot 1 The Barn is a building plot located in the popular village of Titchfield with approved planning permission for a four bedroom detached family home circa 1,808 sq ft with an open plan kitchen/dining room, separate living room, 4th bedroom/study with en-suite shower room, cloakroom/w.c. To t...
An excellent opportunity to purchase an outstanding extended and modernised detached family home which provides 2913 sq ft of living space arranged over two floors, set back from the road behind a high hedge with front garden and 86´ long driveway leading to a detached garage. The house has ...
A unique, extended, spacious and delightful Grade II listed property with extensive and exquisite grounds of approximately 2 acres and enjoying a rural location yet within easy reach of Titchfield, Hill Head and easy access to the M27 motorway.br /> Nota BeneCouncil Tax Band: - Fareham Borough ...
An executive five bedroom, four reception detached residence extending to 3766sft/349.9sqm providing luxury high standard accommodation set in a fine secluded sunny plot with good parking double garage situated a short distance from schools of repute
Situated within the heart of this most sought after village, tucked away along a single track lane, a stunning, deceptively spacious character cottage set in generous, private gardens and benefiting from ample driveway parking and a double garage, which is a rarity for the village.
W&W are delighted to present to the market this substantial detached residence sitting on an enviable plot approaching an acre beautifully set in a peaceful and picturesque semi-rural lane situated at the top of the historic village. Internally the property boasts three double bedrooms, two recep...
Conveniently located for local amenities, green open spaces and with good road and rail links nearby, an attractive and immaculately presented home built in 2014 offering superb reception space and four double bedrooms, as well as benefitting from off road parking for numerous cars, a double oak ...
W&W are delighted to offer for sale this well presented four bedroom detached family home. The property is located within a very popular road and provides four double bedrooms, lounge, dining room, study, modern kitchen/breakfast room, downstairs cloakroom, utility room, conservatory, family bath...
Tucked away in a quiet and leafy corner of the ever-popular Old Garden Close, this elegant four-bedroom detached home combines classic charm with modern comfort—an ideal setting for growing families or those seeking space, privacy, and a touch of luxury.
Middlewood House & The Laurels – Two Exceptional New Eco Homes, Titchfield Common Introducing Middlewood House and The Laurels — a pair of exceptional four-bedroom detached residences that perfectly balance elegant design with sustainable, modern living. Nestled in the sought-af...
Now complete and ready for immediate occupation, Middlewood House is one of just two substantial four bedroom detached homes, thoughtfully designed and built by a local family run developer. Situated on the outskirts of the sought after village of Titchfield, these properties offer a rare blend o...
W&W are delighted to offer for sale this well presented & improved four bedroom detached family home sitting on an enviable plot providing front, rear & side gardens. The property enjoys four bedrooms, lounge, dining room, kitchen, downstairs cloakroom, main bathroom & cloakroom to the main bedro...
Welcome to your soon-to-be four-bedroom detached home, perfectly positioned within a sought-after cul-de-sac that offers both privacy and a welcoming community atmosphere, an ideal setting for family life. Recently modernised and offered with no forward chain, this property is truly turn...
Plot 1 The Barn is a building plot located in the popular village of Titchfield with approved planning permission for a four bedroom detached family home circa 1,808 sq ft with an open plan kitchen/dining room, separate living room, 4th bedroom/study with en-suite shower room, cloakroom/w.c. To t...
Plot 3 The Farm House is a building plot located in the popular village of Titchfield with approved planning permission for a four bedroom detached family home circa 1,702 sq ft with an open plan kitchen/family room, utility, lounge, snug/study, 4th bedroom/study with en-suite shower room, cloakr...
Plot 2 The Stables is a building plot located in the popular village of Titchfield with approved planning permission for a four bedroom detached family home circa 1,747 sq ft with an open plan kitchen/dining/living room, utility room, study, 4th bedroom with en-suite shower room, cloakroom/w.c. T...











































































































































