1 Bedroom Flats For Sale in West Midlands (County)
Fresh, modern city apartment with spacious open-plan living, sleek kitchen and bright double bedroom. Close to central shopping, dining and transport hubs, with parks, culture and education options nearby, offering convenient and stylish urban living.
WONDERFULLY LOCATED OVER 55's LUXURY APARTMENTS Lovekin Gate, a select collection of 12 luxurious one- and two-bedroom apartments exclusively for the over 55's, nestled within the grounds of Blossomfield Park, an exciting new multi-generational development in Solihull.
WONDERFULLY LOCATED OVER 55's LUXURY APARTMENTS. MACC Living are the proud custodians of this extraordinary site situated in such a prestigious location at the heart of Solihull. LOVEKIN GATE offers a unique lifestyle at its very best and consists of 1 & 2 bedroom contemporary livin...
A stylish and spacious one-bedroom top-floor apartment, retirement property, with a study and cloakroom, designed for Comfort, Light and Easy Living Communal area Accommodation : •On-site restaurant •Homeowners lounge or coffee lounge •Activity studio •Hairdressing salon...
An excellent 2nd floor duplex apartment offering some 1,420 sq. ft. (132sq. m.) of versatile open plan living space, set within the stylish former conversion of the 1938 Fellows, Morton, and Clayton warehouse in a prime canal side location, and situated close to Brindleyplace and Broad Street. ...
MACC Living are the proud custodians of this extraordinary site situated in such a prestigious location at the heart of Solihull. The development offers a unique lifestyle at its very best and consists of 1, 2 & 3 bedroom contemporary living apartments.
Perfectly positioned in the heart of Birmingham’s historic and highly sought-after St Paul’s Square, this exceptional one-bedroom duplex apartment blends contemporary style with urban sophistication. Beautifully arranged over two floors, the property boasts a spacious open-plan living...
A vibrant new development just 10 minutes from Birmingham New Street, Edition introduces a fresh take on city-centre living in one of the city's most exciting regeneration areas. Surrounded by green space, cultural landmarks, and leading universities, the development offers open-plan apa...
Centenary Tower, Edition - Ideally located just off Centenary Square in Birmingham city centre, Edition’s tier one location is second to none. Known as the cultural heart of the city, Centenary Square is home to the biggest library in Europe, Symphony Hall, and Birmingham Repertory Theatre.
A vibrant new development just 10 minutes from Birmingham New Street, Edition introduces a fresh take on city-centre living in one of the city's most exciting regeneration areas. Surrounded by green space, cultural landmarks, and leading universities, the development offers open-plan apa...
EDITION offers a 5* HOTEL experience. Amenities include swimming pool, spa, sauna, steam room, skyline gym, yoga & spin studios, climbing wall, terrace with cinema screen and BBQ area, co-working lounge, 14th floor garden with outdoor co-working and spa pool, private dining and resident sky l...
** INVESTMENT OPPORTUNITY ** Luxury OFF PLAN 1 & 2 bed apartments Projected Yield: 6% Completion - Q4 2027 12% capital growth forecast over construction period Prime City Centre location in Birmingham 20-metre swimming pool with natural daylight Spa with hydro pool,...
EDITION offers a 5* HOTEL experience. Amenities include swimming pool, spa, sauna, steam room, skyline gym, yoga & spin studios, climbing wall, terrace with cinema screen and BBQ area, co-working lounge, 14th floor garden with outdoor co-working and spa pool, private dining and resident sky l...
EDITION offers a 5* HOTEL experience. Amenities include swimming pool, spa, sauna, steam room, skyline gym, yoga & spin studios, climbing wall, terrace with cinema screen and BBQ area, co-working lounge, 14th floor garden with outdoor co-working and spa pool, private dining and resident sky l...
Welcome to Edition, Birmingham’s Most Luxurious Development Be part of something extraordinary. Edition is not just a place to live. It is a statement. This is Birmingham City Centre’s first residential building with its own Private Swimming Pool. A landmark moment that sets a bold new s...
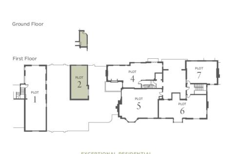
Tudor Grange is a spectacular Grade II listed building, thoughtfully converted into an exclusive collection of eight stunning one and two bedroom residential apartments and three bungalows, set amidst the tranquil mature grounds of Blossomfield Park
EDITION offers a 5* HOTEL experience. Amenities include swimming pool, spa, sauna, steam room, skyline gym, yoga & spin studios, climbing wall, terrace with cinema screen and BBQ area, co-working lounge, 14th floor garden with outdoor co-working and spa pool, private dining and resident sky l...
Introducing Park Residence at Edition Birmingham, the first of two connected buildings set to transform the city´s skyline and residential market. This exclusive development features 149 luxury one and two-bedroom apartments, designed to the highest standards with modern living in mind.









































































































































































