Auction Properties For Sale in West Midlands (County)
** SOLD VIA AUCTION ** ** DEVELOPMENT OPPORTUNITY ** ** EXTENDED ** ** PRIME LOCATION ** Oakmans are pleased to present this detached house, with ample development opportunity. Located in the heart of Selly Oak, this could either be a family home or a student investment pr...
BEING SOLD VIA MODERN METHOD OF AUCTION - NOW LIVE ON BROOKVALE AUCTIONS - Amesbury Manor is a striking Victorian residence that was originally built as a substantial family home and has since been sympathetically converted into eight well-proportioned apartments. Each apartment is ideal...
**For Sale By Public Auction 10th December 2025 09:30 AM To inspect the legal documents for this property go to our website to download the legal pack** A Substantial Building Arranged to Provide Thirteen Flats (10 x Two Bedroom, 3 x One Bedroom) Producing £1...
A fantastic opportunity to purchase this extensive five-bedroom home on the sought-after Hob Lane in Balsall Common. With four bedrooms and five receptions to the main house, a self-contained one-bedroom annexe and 1.15 acres of beautifully mature gardens, offered with no upward chain.
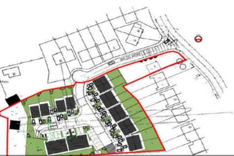
For Sale By Public Auction 10 December 2025 A vacant freehold cleared site which extends to a site area of approximately 1.61 acres (0.65 hectares) which may be suitable for development and a variety of uses, subject to obtaining the necessary planning consents
For Sale By Public Auction 10 December 2025 A vacant freehold cleared site which extends to a site area of approximately 1.61 acres (0.65 hectares) which may be suitable for development and a variety of uses, subject to obtaining the necessary planning consents
***DINING ROOM***TWO KITCHENS***NINE BEDROOMS***CAN BE SPLIT TO SEPARATE OWNERS' ACCOMMODATION***LIVING ROOM***OFF ROAD PARKING SPACES AT THE FRONT***CURRENTLY OPERATED UNDER MANAGEMENT BUT WILL BE VACANT ON COMPLETION***MAIN ROAD POSITION WIHT EXCELLENT ROAD AND RAIL CONNECTIONS**SEPARATE GARAE ...
FOR SALE BY MODERN AUCTION T & C'S APPLY. Residential Development Opportunity – Rookery Road/ Bayliss Avenue, Wolverhampton Freehold site approx. 1.31 acres (0.53 ha) in a popular, well-connected location. Includes an existing 3-bed detached house and lapsed planning permis...
Located on Gravelly Hill North, this prime investment opportunity comprises six self contained apartments which are let out at full occupancy, with off-street parking for six cars to the front, and a large garden to the rear. This property provides instant income to it's next owner, generating a ...
For Sale By Public Auction 10 December 2025 A vacant freehold three storey row of three terraced properties, which have been converted into 9 flats (7 studios and 2x one bedroom). The property may be suitable for redevelopment or conversion back into three dwellings, subject to obtaining the nece...
A unique opportunity offering potential conversion or development subject to all relevant planning permissions, occupying a prominent position in a popular residential area within walking distance into Sedgley centre. This impressive property with land to the rear totalling approximately 1053 squ...
For Sale by Modern Auction. Sitting within a COMMANDING PLOT "Abberley House" was built in the early 1700's and is a distinguished period home, part of Dudley's rich heritage. Now requiring a full scheme of updating throughout yet offering plenty of character and charm. There is plenty of livi...
A fantastic opportunity to purchase this spacious three bedroom family home in Dockers Close, a quiet cul-de-sac in the sought-after Balsall Common, The Property itself has plenty of space on offer while still benefiting from the potential to extend further (STPP) NO CHAIN
Situated in one of South Walsall's most prestige and popular tree lined avenues, this detached family home is set on a plot of approximately third of an acre with a 52ft frontage which lends itself to extensions or plot redevelopment (subject to necessary Planning Permission). Conveniently ...
*FANTASTIC STUDENT PROPERTY – FIVE BEDROOMS – FIVE EN SUITES* Introducing this student property rented until July 2026 @ £36,400.20 p/a - offering accommodation briefly comprising of; five bedrooms, five bathrooms and an open plan kitchen living area.
** SOLD VIA AUCTION ** ** DEVELOPMENT OPPORTUNITY ** ** EXTENDED ** ** PRIME LOCATION ** Oakmans are pleased to present this detached house, with ample development opportunity. Located in the heart of Selly Oak, this could either be a family home or a student investment pr...
For Sale via Auction through Under The Hammer, Birmingham Maguire Jackson are delighted to present this beautifully appointed and stylish three bedroom duplex apartment in the desirable Royal Arch Development. The property birefly comprises an entrance hallway, open-plan kitchen/living...
MODERN AUCTION PROPERTY - T&C's and Buyers Fees Apply - A spacious detached three/four bedrooms family home situated in a most convenient location with a large rear garage yard. Offering accommodation comprising two spacious reception rooms, extended breakfast kitchen, guest W.C, three bed...
For sale by Under the Hammer online auction on Thursday 18th December 2025.A six bedroom semi-detached property with driveway and garage located on Shirley Road, Birmingham. The ground floor consists of a hallway, two reception rooms, fitted kitchen, an...
*FOR SALE VIA THE MODERN METHOD OF AUCTION * GUIDE PRICE £415,000 * BIDDING CLOSES 11 DECEMBER 3PM * RESERVATION FEE APPLIES * FOR BIDDING AND LEGAL INFORMATION PLEASE VISIT HUNTERS.COM/AUCTIONS Offered with the benefit of no upward chain and occupying a generous size corner plot in a sought ...
** AUCTION SALE * AUCTION FEES APPLY * GREAT SIZE PLOT * IN NEED OF MODERNISATION ** ******************** AUCTION DATE BIDS CLOSED 10th DECEMBER ************************** This DETACHED DORMER BUNGALOW requires modernisation throughout but is set on a good size plot within a S...















































































































































































