Properties For Sale in White House, Ipswich, Suffolk
Conveniently located for the A14 commuter trunk road towards the west side of Ipswich lies this two bedroom end of terrace house which is being sold with no onward chain. Accommodation comprises lounge, kitchen/diner, rear lobby, ground floor bathroom, first floor landing, and two double bedroom...
An incredible bungalow offering heavily extended accommodation itself, with the added benefit of a whole detached bungalow annex structure at the rear of the garden. Rarely does a bungalow of such substantial size and flexible accommodation come to market so please do not miss your cha...
*** GUIDE PRICE: £325,000 to £350,000 *** This four-bedroom detached house, tucked away down a cul-de-sac on a modern estate towards the west side of Ipswich and conveniently located for access to the A14 commuter trunk road, is being sold with no onward chain. The pro...
NO ONWARD CHAIN - SUPERB 0.17 ACRES PLOT WITH HUGE POTENTIAL - SUBSTANTIAL THREE BEDROOM DETACHED BUNGALOW WITH LARGE SECLUDED REAR GARDEN - CLOSE PROXIMITY TO IPSWICH TOWN CENTRE AND TRAIN STATION - OFF ROAD PARKING WITH GARAGE AND LARGE WORKSHOP / HOME OFFICE - FAMILY SHOWER ROOM - CONSERVATOR...
The property comprises an end terrace two storey residential dwelling, constructed from solid brick elevations and UPVC double glazed windows, all surmounted by a single pitched clay tiled roof. The property currently operates as a fully licensed HMO. To the rear of the property there is a lar...
Finished to a high standard throughout Connells are pleased to offer this semi-detached property built in 2022 and located to the West side of Ipswich. The home boasts a generously sized modern kitchen/diner, front and a large rear garden, garage & off road parking and is being sold with no onward.
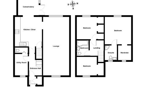
Welcome to this immaculate four-bedroom Linked detached family home located on Jovian Way. This property offers a perfect blend of modern living and comfort, making it an ideal choice for families seeking a spacious and inviting environment. As you enter, you are greeted by a well-propor...
We are pleased to offer for sale this SUPERBLY PRESENTED, SUBSTANTIALLY EXTENDED THREE BEDROOM FAMILY HOUSE, with impressive room sizes throughout. Finished to the highest standards offering spacious family accommodation, garden, parking and external office. Conveniently located on the outskirts of
**GUIDE PRICE £290,000 to £300,000** This nicely presented three-bedroom bay window semi-detached property is located on the west side of Ipswich and benefits from gas central heating, double glazing, off-road parking and a good size south facing rear garden. As agents, we...
A SPACIOUS and WELL PRESENTED 4 BEDROOM 3 storey end town house benefiting from a CAR PORT providing off road parking for up to 3 vehicles located on the western fringes of Ipswich on the popular Blakenham Park. The accommodation on the ground floor has a cloakroom, kitchen/diner, study/4th bedro...
*** GUIDE PRICE: £290,000 to £300,000 *** This nicely presented three-bedroom semi-detached house, situated on a modern development on the western outskirts of Ipswich and offering good access out to the A14, is being sold with no onward chain. The property benefits fr...
Introducing this stunning three-bedroom semi-detached house located in the highly sought-after cul-de-sac of West Ipswich. Nestled within a peaceful and family-friendly neighbourhood, this property boasts a prime position in a popular locale, offering the perfect balance of tranquillity and conve...
An exciting opportunity to own this extended three bedroom semi-detached property located near many amenities & schools. The home is presented to a high standard throughout, has ample living accommodation, a generous landscaped rear garden with timber lodge, off road parking and no onward chain.
A charming double fronted three bedroom property located to the west side of Ipswich. The home is well presented throughout and boasts generous living accommodation with three reception areas, groundfloor cloakroom and first floor bathroom, front and rear gardens and has off road parking.
*First Time Buyers and Investors Only* *GUIDE PRICE £270,000 - £280,000* An attractive and spacious three bedroom semi-detached home that has been extended to provide versatile accommodation, featuring two reception rooms and a conservatory with a large kitchen/breakfast room. The property also...
We are pleased to offer for sale this WELL PRESENTED, DECEPTIVELY SPACIOUS, FOUR BEDROOM, ATTRACTIVE RED BRICK MODERN HOUSE, most conveniently located on the sought after Jovian Way development, offering easy access to Supermarkets and the town centre. Offered with the added benefit of no onward cha
This very nicely presented three-bedroom semi-detached house is situated towards the west side of Ipswich offering good access to the town centre, mainline train station and A14 commuter trunk road. The property benefits from off-road parking to the front for one car and a low-maintenance rear g...
An exciting opportunity to own this well presented three bedroom semi-detached property located near many amenities & schools. The property benefits from a spacious living room, a kitchen/dining area, garage and driveway providing off road parking and has complete onward chain.
YOPA PROUDLY PRESENTS THIS 3 BED 3 STOREY TOWN HOUSE LOCATED ON THE POPULAR WEST OF IPSWICH ** 4.6M X 4.2M BEDROOM 1 ** EN-SUITE SHOWER ROOM ** FRONT DRIVEWAY AND ALLOCATED PARKING IN CAR PARK ** WELL PRESENTED PROPERTY ** CLOAKROOM ** LOUNGE/DINER ** FAMILY BATHROOM ** EASY ACCESS TO A12/24
YOPA PROUDLY PRESENTS THIS 3 BED SEMI-DETACHED HOUSE IN THE WEST OF IPSWICH ** HOME OFFICE AREA ** UPDATED BY CURRENT OWNER ** NEW BATHROOM ** NEW KITCHEN WITH NEW APPLIANCES ** NEW CARPETS AND FLOORING ** GOOD SIZED REAR GARDEN ** UTILITY AREA ** NO ONWARD CHAIN.
















































































































































































































































































































