to
to
Properties For Sale by Davies Property Partners, Cobham, including sold STC
73 results
Prioritise properties with...
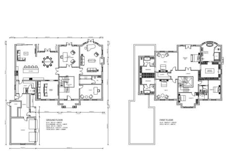
The Barton, Cobham, KT11
Detached
7
5
A substantial and well-established seven-bedroom detached family home, set within a prestigious private gated estate in Cobham, offering over 6,000 sq ft of generous accommodation, beautifully landscaped south-westerly facing gardens, and a heated swimming pool.The Barton provides an excellent ba...





















































