Properties For Sale by Jackson-Stops, Bury St Edmunds, including sold STC
50 results
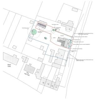
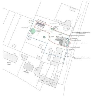
An exciting opportunity to acquire a garden plot, with full planning consent to build a new individual, Suffolk character styled home. RESIDENTIAL BUILDING PLOT Planning permission granted for the Self-Build development of a single dwelling with garage and landscaping.
A superbly presented and substantial country residence located in a stunning secluded position, idyllically set in 36 acres of gardens, grounds, paddocks, woodland and a 3 acre lake, yet just 3 miles from Bury St Edmunds and the A14. Entrance hall, drawing room, kitchen/breakfast/fami...
An extraordinary, uniquely situated, historical and beautiful Grade II listed moated manor, once owned by a Tudor Queen with the added benefit of a range of outbuildings to include party barn, games room and swimming pool. Situated in picturesque gardens and grounds of approximately ...
An impressive Victorian mansion, presented to a high standard throughout and wonderfully set in landscaped grounds of about 3.6 acres. ACCOMMODATION SUMMARY Gothic Styled 1860’s Built Country House Formal ‘Rectory’ Porch & Entrance Hall Five Recep...
An outstanding and exceptionally versatile family house, with excellent character and substance, superbly set with beautiful grounds and a detached annexe building, mill tower, outbuildings and tennis court. Entrance hall, drawing room, dining room, kitchen/breakfast room, sitting/gard...
A beautiful regency style townhouse, classically designed and with a superior specification, located in a private gated development of just six houses, minutes from the town centre. Entrance hall, open plan kitchen/dining room, utility room, cloakroom and storage cupboards. First floor...
A most attractive and substantial period village house standing in an idyllic and private setting next to the church on the outskirts of this most favoured village, within gardens approaching one acre. Entrance hall, drawing room, dining room, kitchen/breakfast/family room, study/bedr...
An outstanding, beautifully presented Grade II listed six bedroom family home, with excellent character and substance, superbly set in 1 acre with part landscaped grounds and a detached double garage, at the end of a country lane. Entrance hall, drawing room, dining/garden room snug, s...
An impressive period farmhouse with substantial accommodation occupying an idyllic rural location in 1.5 acres, yet only 10 minutes from a mainline railway station. Entrance hall, drawing room, sitting room, dining room, kitchen/breakfast room, utility room, two bath/shower rooms and a...
An exceptional and superbly presented Grade II* listed village house offering generously proportioned accommodation, set within beautifully landscaped gardens approaching 1.4 acres (sts). Dining hall, drawing room, garden room, sitting room, kitchen/breakfast room, study area, utility/...
A beautifully presented and much improved detached house, standing in an idyllic, tucked away setting within gardens and grounds of around 1.3 acres. Entrance porch, reception/reading room, sitting room, kitchen/dining/family room, study, utility room and cloakroom. First floor master ...
A superbly characterful detached period property (not Listed), wonderfully enhanced, enlarged and modernised, to a high specification and stylish modern standards, with parking, garaging & gardens. Reception hall, panelled sitting room, living/dining room, kitchen/breakfast room, o...
An immaculately presented and well-proportioned family home enjoying a most beautiful tucked away setting abutting farmland, conveniently located in the centre of this highly regarded and well-served village. Entrance lobby, entrance hall, sitting room, dining room, family room/study, ...
A modern detached town house with versatile accommodation, standing in a highly favoured residential area on the west side of town, with gardens of about 0.33 of an acre. Entrance hall, sitting room, kitchen/dining/living room, family room/studio, utility room and a cloakroom. Four fir...
A wonderful, superbly presented and maintained, Grade II listed thatched property, set in gardens of about 0.31 of an acre, backing onto Hardwick Heath. Open sided entrance porch, kitchen/breakfast room, sitting room, dining room, garden room and a utility/cloakroom. First floor master...
A superb and stylishly presented converted barn with annexe, garaging and gardens, well located within this rural community. Hall, sitting room, snug, kitchen/dining room, utility room, cloakroom and a home office/garden room. First floor master bedroom with en-suite shower room, three...
An excellent, spacious and versatile Grade II listed family home, affording scope to divide, with parking and a charming walled garden. Entrance hall, drawing room, dining room, sitting room, kitchen/breakfast living room with pantry, cloakroom and shower room. Second utility/kitchen ...
A superb six bedroom, modern family home, well presented and positioned within enclosed gardens, set back at the end of a drive from the lane, in this sought after village. Entrance hall, sitting room with fireplace, kitchen/dining room, garden room, study, utility room and cloakroom.<...
A beautifully presented and much improved detached house standing in a picturesque location overlooking a village Green and abutting countryside. Hall, sitting room, dining room, playroom/tv room, study, kitchen/breakfast/family room, utility room and a shower/cloakroom. F...
A substantial, detached converted brick & flint barn, wonderfully set in a small enclave, at the end of a long farm track, within the Euston Hall Estate. Entrance hall, drawing room, dining room, sitting/garden room, kitchen & breakfast room, study/snug, playroom/bedroom, utili...
A well-presented and spacious detached family home, well positioned and set in about 0.24 of an acre of mature private gardens, in this popular hamlet. Entrance hall, kitchen/breakfast room, sitting room, dining room, family/garden room, study/music room, utility room and cloakroom. Fi...
A beautifully presented charming timber framed farmhouse, sympathetically restored to a very high standard over recent years, standing in a pleasant hamlet location. Reception porch, sitting room, dining hall, kitchen/breakfast room, snug, study, utility, shower room and cellar. Three ...
A fabulous Grade II listed timber framed house of significant character, superbly set in around 1.5 acres of private gardens and grounds, with no direct neighbours. Entrance hall, sitting room, dining room, kitchen/breakfast room, garden room, rear hall & utility/boot room and a cl...
An elegant and very well-presented early Victorian townhouse with a contemporary extension to the rear, standing in an excellent central location within the medieval grid. Entrance hall, sitting room, kitchen/dining/family room and a cloakroom. Two cellar rooms. First and second ...
A superb stylishly presented Grade II listed detached house, with off road parking & versatile outbuildings, with a view over the village Green in this highly regarded village. Hallway, drawing/dining room, sitting room, kitchen/breakfast room, utility/boiler cupboard and a bath/s...

















