Properties For Sale by Lacy Scott & Knight, Bury St Edmunds, including sold STC
70 results
An unlisted property in a conservation area – positioned close to the town centre of Soham on the corner of Ten Bell Lane – first time to the market in over 70 years. A wonderful opportunity to acquire an interesting period property with so much potential to update now.
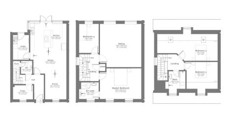
Welcome to Symonds Walk, Badwell Ash, a select new home development by Hartog Hutton. Plot 2 is the first home to be released and is a four bedroom detached house with double garage and parking. Please call Lacy Scott & Knight to arrange a viewing
Welcome to Symonds Walk, a thoughtfully designed collection of homes in the charming village of Badwell Ash. Built by renowned local developers Hartog Hutton, this select development offers a mix of 3 & 4-bedroom houses and detached bungalows, blending contemporary design with the warmth of t...
Welcome to Symonds Walk, Badwell Ash, a select new home development by Hartog Hutton. Plot 9 is a ready to reserve now and is a three-bedroom detached bungalow with double garage and parking. Please call Lacy Scott & Knight to arrange a viewing
A beautifully presented country home with character and style. If you would love an off-grid lifestyle, at the end of a quiet by-road, surrounded by gardens extending to approx. 0.6 acre, and open countryside. With an option to lease a further 6 acres of equestrian paddocks, subject to the terms ...




























































































































































