Terraced Houses To Rent in East Sussex
STUDENT HOUSE TO RENT | 7 BED HOUSE | 7 DOUBLE BEDROOMS | 2 BATHROOMS | AVAILABLE SEPTEMBER 2026 | 11 MONTH CONTRACT | ENGLAND HOMEOWNER GUARANTORS REQUIRED | FURNISHED | OPEN PLAN KITCHEN | OFF LEWES ROAD LOCATION | STUDENT HOUSING BRIGHTON | BRIGHTON HMO |
A refurbished two bedroom house with sea views, Brand new fitted kitchen, brand new fitted quality carpets throughout, new vinyl to the kitchen and bathroom. This lovely home has been redecorated throughout and has a pretty rear garden. Allocated parking space.
SJ Property Services are pleased to present this spacious and well-furnished three-bedroom student house on Viaduct Road, offering a comfortable and practical living environment. The property features a lounge, fully fitted kitchen, two basement bedrooms, and a first-floor bathroom, making it ide...
An attractive mid-terrace 3-bedroomed house, available on either a fully furnished, or unfurnished basis. The property is situated in convenient position for local shops and rail station, and benefits from GCH, part-d/g and patio/garden to rear, and is considered to be in good condition throughou...
CLICK 3D TOUR LINK! | BRAND NEW MODERN KITCHEN! | NEW SHOWER ROOM BEING FITTED SUMMER 2026 | FIVE SPACIOUS DOUBLE BEDROOMS | SEPARATE LIVING ROOM | BILLS INCLUDED OPTIONS AVAILABLE | ZERO DEPOSIT OPTION | MONTHLY GARDENER INCLUDED | CONTENTS INSURANCE INCL | COAPT REF: 6703673 A charming five ...
situated in the centre of this popular village which is on the southerly edge of the High Weald area of outstanding natural beauty. The property provides two reception rooms, a fitted kitchen and small conservatory style utility room on the ground floor and two bedrooms and bathroom on the f...
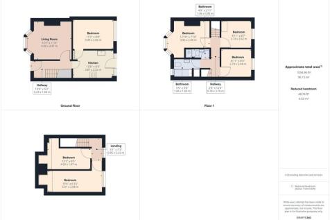
**50% off rent if you move in before 12th January 2026** The perfect family home in a great catchment area to local schools and public transport links! Situated in the popular Hampden Park area, this three-bedroom home on Hazelwood Avenue offers comfortable family living in a c...
CENTRAL LOCATION | 4 DOUBLE BEDROOMS | GREAT TRANSPORT LINKS TO UNI | LARGE PROPERTY | MODERN KITCHEN | CLOSE TO LOCAL AMENITIES | BILLS INCL OPTION | COAPT REF: 6723382 Stunning 4 double bedroom student house situated on Elm grove, home to great transport links to both Universities, as well ...
DOUBLE BEDROOM IN SHARED HOUSE | SEPARATE LOUNGE | VIRTUAL TOUR | DISHWASHER | ADDITIONAL WC | CLOSE TO UNI BUS STOP | WALKING DISTANCE TO MITHRAS & COCKCROFT CAMPUS | FREE PARKING* | LARGE GARDEN W GARDENER INCLUDED | BILLS INCL OPTION | CONTENTS INSURANCE INCL | COAPT REF: 12718358 This spac...
Student House | Sept 2026 | (£642pppm | ~£148pppw) | Fantastic Elm Grove Location | 7 Bedrooms | Modern Fitted Kitchen with Dining Area | Sitting Room | Bathroom (with separate full shower) & Shower Room | Lawn Rear Garden | Gas Central Heating | Double Glazed | Inclusive Bills Package Available
**50% off rent if you move in before 12th January 2026** An improved two-bedroom house located in the popular Fairlight Road area of Eastbourne. This well-presented property offers comfortable and practical living accommodation, ideal for professionals, couples, or a small family.
STUDENT HOUSE TO RENT | 7 BED HOUSE | 7 DOUBLE BEDROOMS | 2 BATHROOMS | AVAILABLE SEPTEMBER 2026 | 11 MONTH CONTRACT | ENGLAND HOMEOWNER GUARANTORS REQUIRED | FURNISHED | OPEN PLAN KITCHEN | OFF LEWES ROAD LOCATION | STUDENT HOUSING BRIGHTON | BRIGHTON HMO |
















