Properties To Rent in Old Botley, Oxford, Oxfordshire
AVAILABLE NOW! HMO Sharers - Four-Bed Mid-Terraced House on Binsey Lane. Martin & Co are pleased to present this four-bedroom mid-terraced house on Binsey Lane, available fully furnished and ideal for four sharers. The property comprises four well-sized bedrooms, a comfortable living room, ...
Two bedroom period house situated in this popular location within walking distance of Oxford Rail station and the City Centre. Available unfurnished. Two double bedrooms, Bathroom with shower over, Living/Dining room, Fully fitted Kitchen with electric oven and hob. Gas central heating, Rear g...
One Bedroom Duplex Apartment close to City Centre - **PETS CONSIDERED** Convenient access to Oxford Train Station and the Ring Road. Open Plan Kitchen/Diner/Reception: Spacious and designed with a modern open-plan layout. Features contemporary furniture and lighting for...
A high specification, one bedroom first floor apartment with lift access in the centre of Oxford. Available furnished, the property includes an open-plan living space & kitchen with integrated appliances. There is a spacious double bedroom and a large bathroom with bath and separate shower. A par...
A stylish top floor one bedroom apartment in Oxford city centre. A smartly presented apartment with lift access with a spacious open-plan living/dining room and a modern kitchen with integrated appliances. The large double bedroom includes an en suite bathroom with both a bath and a separate sho...
** Zero Deposit Guarantee Available ** STUDENT HMO PROPERTY AVAILABLE FOR THE 2026 ACADEMIC YEAR - This excellent five bedroom fully furnished HMO property suitable for either professional sharers or students situated in a prime location of Oxford City just a 10 minute walking distance to Oxford ...
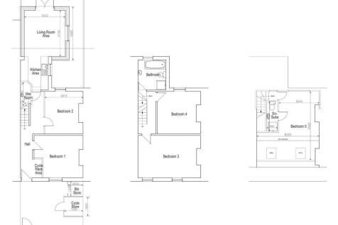
NO DEPOSIT PAYABLE with the residency membership. HMO 5 double bedroom house with a licence for 5 individuals in an unbeatable location by the train station. Refurbished throughout to a high standard with 5 double bedrooms, 3 bathrooms and communal living space. Available now, fully furnished.
A high specification one bedroom apartment located under half a mile walk to the rail station. Located on the second floor with lift access. Furnished in a contemporary style and to a very high standard this property has a dual-aspect living/dining room and kitchen with integrated appliances inc...
1 DOUBLE ROOM available for rent in a shared flat on Botley Road. POTENTIAL FOR SHORT TENANCIES (less than 6 months) **The utility bills and council tax are INCLUDED IN RENT** **Each room is suitable for a single person.** Conveniently located within walking distance to both ...
A Victorian three-storey four bedroom mid-terrace family house in sought-after Osney Island. The property has a bright and spacious living/dining room with wood floors and gas fire leading to a generous kitchen/breakfast room with appliances. On the first floor there are two double bedrooms with...
A high-specification penthouse apartment with a private balcony, access to a shared riverside garden and two off-street parking spaces. The main bedroom has an en-suite bathroom. There are two additional double bedrooms and a further bathroom. The open-plan kitchen/living room has an island and...
Martin & Co Oxford welcomes this double room to the market. The room is located on the Botley road and is within 0.7 miles from the Oxford City Centre. The room is ideal for a single occupant working/studying in the Oxford City Centre. The property offers a communal kitchen, dining area, sh...
AVAILABLE NOW! HMO Sharers - Four-Bed Mid-Terraced House on Binsey Lane. Martin & Co are pleased to present this four-bedroom mid-terraced house on Binsey Lane, available fully furnished and ideal for four sharers. The property comprises four well-sized bedrooms, a comfortable living room, ...









































