Properties To Rent in Dorset
**Zero Deposit Available** AVAILABLE JANUARY 2026 || TWO DOUBLE BEDROOM || FULLY FURNISHED || SECURE GATED DEVELOPMENT || WHITE GOODS INCLUDED || LIFT || COMMUNAL, HEATED SWIMMING POOL || COMMUNAL GYM || MUST SEE APARTMENT IN FANTASTIC LOCATION || 0.5 MILES TO BOSCOMBE PIER || CALL NOW TO VIEW ||...
Well presented TWO DOUBLE BEDROOM apartment, offered UNFURNISHED. The property benefits from SPACIOUS kitchen with white goods, BRIGHT AND AIRY living room and a modern FAMILY BATHROOM and ample built in storage throughout. There is ALLOCATED off road PARKING and PRIVATE GARAGE. **No Pets Permitt...
**SEA VIEWS & BEACH LOCATION** Spacious TWO BEDROOM APARTMENT unfurnished, located in quiet residential area of Alum Chine, Bournemouth. The property offers DOUBLE BEDROOM, living room w/ WOODEN FLOOR, separate kitchen w/ WHITE GOODS, modern BATHROOM and ALLOCATED PARKING FOR ONE CAR. No Pets...
DELIGHTFUL THATCHED COTTAGE CLOSE TO THE JURASSIC COAST - A very well presented 3 bedroom character cottage located in East Lulworth. The ground floor accommodation includes a modern kitchen with built in oven & hob, separate utility room, lounge with log burner, a separate dining roo...
RECENTLY REFURBISHED THATCHED COTTAGE TO RENT IN LULWORTH. A well presented one bedroom cottage, the ground floor accommodation includes a newly fitted kitchen, lounge with a featured fireplace with log burner. Bathroom suite comprising of bath with an electric shower over, WC and washbasin. T...
PROPERTY RE-AVAILABLE FOR LET IN WAREHAM TOWN CENTRE. A three bedroom detached house set in a convenient town centre location close to Wareham Quay, the local shops, bars and restaurants. Accommodation comprises of - - Entrance hall open plan to dining room. - Lounge - duel aspect, open ...
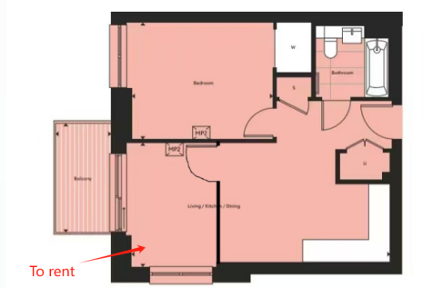
Very spacious one double bedroom second floor apartment. 'Roselands' is perfectly situated for professionals, town centre dwellers and commuters as it is within walking distance of the mainline railway station and Bournemouth’s shops and beaches. Once in the property the inner hallway leads...
RIGHTLETTS are pleased to offer a well presented One Double Bedroom Ground Floor Flat with private SOUTH FACING GARDEN*Modern Open Plan Kitchen with fridge*Utility Room with Washing Machine*En-suite Shower Room*Sunny Lounge**Off Road Parking*GFCH*double glazed*Unfurnished*Suit Single Professional*










































