Student Accommodation To Let in Leamington Spa, Warwickshire
**Click here for video tour** **AVAILABLE FOR THE 2026-2027 ACADEMIC YEAR* A well presented, fully firnished house. This 9 bedroom terraced town house, is located on the outskirts of Leamington town centre in close proximity to bus stop and local shops. Furnished - Available September 2026
**CALLING ALL STUDENTS 2026** Leaders are delighted to offer this fantastic student accommodation with four doubles bedrooms, and a single bedroom two bathrooms, separate reception room, garden access, and parking facilities, ideal for students seeking a comfortable and convenient place to call ...
6 Bedrooms – 6 x Double beds, 5 bedrooms with sinks/basins. Open plan Kitchen/Dining &Livingroom Integrated Dishwasher Gas Hob 5 x rings Built in Oven Built in Microwave Integrated Fridge/freezer Laundry Cupboard with washing machine and separate economical ‘Heat pump’ tumble dryer 2 x Toilets B...
*UNDER REFURBISHMENT SUMMER 2024* FIVE BEDROOM student period town house, Spacious terrace property located in a populer student area of the town. The house benefits from gas central heating, double glazing, kitchen with washing machine. Also bathroom with shower and additional wc. In addition...
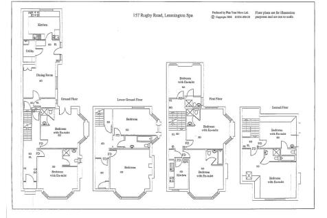
Nine bedroom student property located close to Leamington town centre. Seven of the bedrooms have ensuite bathrooms or shower rooms and the two bedrooms in the basement with two bathrooms. Communal kitchen and lounge have been newly refurbushed with additional kitchen on first floor. The propert...
Four bedroom student property located in south Leamington close to local shops and university bus stops. The property comprises of double glazing, gas central heating, bathroom with shower, additional shower-room, additional separate wc, kitchen, with dishwasher and washing machine, lounge/dining...
A well-presented and maintained 4-bedroom mid-terrace period property situated a few minutes’ walk from the Parade and Jephson’s Gardens. The property benefits from gas central heating and double glazing. Property includes a newly-fitted white bathroom suite (L-shaped bath with shower over) and ...
A well-presented and maintained 4-bedroom end of terrace period property in the popular student area of South Leamington. The property benefits from gas central heating and double glazing. Property incudes a newly-fitted kitchen (with washing machine and tumble dryer), a newly-fitted white bat...
THREE BEDROOM PROPERTY **FITTED WITH SOLAR PANELS** which will significantly reduce utility costs** in a small cul-de-sac in a popular part of Leamington Spa, with gas central heating, double glazed, new fitted kitchen, new bathroom, new carpets & decor throughout. Interlinked smoke alarms, on-s...