Land For Sale in Bedfordshire
* The site is 1 acre (0.4045 hectares). * The site is fully fenced, gated, capped of services and concrete surfaced. * B8 planning granted in 1976 with unrestricted working hours. The site may lend itself to other variety of alternative uses and redevelopment, subject to obtaining all the nec...
Residential Development Opportunity - Approx. 0.8 Acres An exciting residential development opportunity in the heart of Stopsley, Luton. The site, approximately 0.8 acres, is located off Ashcroft Road, just a short walk from local shops, amenities, and the Inspire Luton Sports Village. It current...
PRIME NEW LISTING. We are excited to present this expansive 4.4-acre plot of land located within a prime location in Upper Caldecote, Biggleswade.The property offers a remarkable potential for residential development, making it an enticing opportunity for investors and developers alike.
Development site of 0.129 ha (0.31 ac) in Dunton, Biggleswade, with full planning consent (CB/23/01779/FULL) for two detached dwellings. Established access, parking, landscaping, and ecological enhancements included. A sought-after village with strong links to Biggleswade.
FOR SALE VIA ONLINE AUCTION: Terms and conditions apply. We are pleased to offer to auction this land site well located in Edworth, Biggleswade. The subject site measures approximately 0.0504 acres (203.9sqm) with a perimeter of roughly 58.63m. Please note we have not inspected this site.
*For sale via secure sale online bidding: terms and conditions apply.* We are pleased to offer to auction this parcel of land measuring approximately 0.048 acres (194.24sqm) with a perimeter of roughly 58.1m. The subject site is located along Luton Road, based in the small village of Wilste...
The site extends to 1.69 acres (0.68 hectares) and consists a mix of concrete tarmac land and grassed surface. The site in part is currently used for overspill car parking. Located just off the Leighton Road, the site has full planning permission under reference 'CB/23/02921/OUT' with Central Be...
Calling all season investors!!!! This block has masses of rental income with the current owner getting over £300,000 per year!!!! This rare investment comprises of 26 apartments!!!! This is not one to be missed!!! This rare exceptional freehold investment opportunity consisting ...
An excellent opportunity to acquire this 0.49 hectare site situated in an attractive rural location on the edge of this popular Mid Beds village with excellent road and rail links. The site has planning consent for four detached bungalows each with a private driveway and garage.
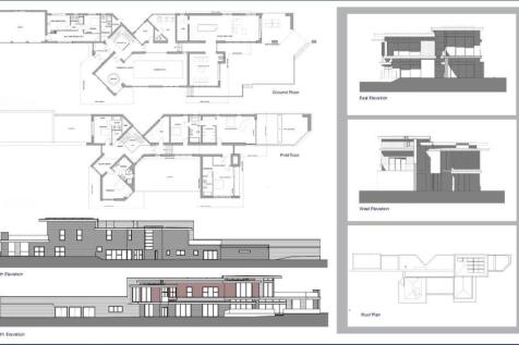
Taylor Land is delighted to bring to the market this rare building plot located in one of Bedford's most sought after locations. The site is accessed by a private gated driveway and is being sold with planning permission in place for an impressive 'grand designs' style residence. The planning has...
Two industrial units for sale at Sewell Manor. The units provide 8,000 sqft of accommodation across one floor with two main storage units, two WC’s and five additional offices. The units are located within the greenbelt and could offer potential to be converted subject to planning.
A unique chance to acquire with this select development of three quality properties on a quiet country lane adjoining fields within the popular North Bedfordshire village of Keysoe. Planning has been granted along with building regulations approved under reference 18/00856/OUT allowed under appea...
POTENTIAL RESIDENTIAL DEVELOPMENT SITE subject to planning TO INCLUDE A REPLACEMENT CHURCH/COMMUNITY FACILITY TO BE BUILT AND PROVIDED TO THE SELLER AT NIL COST - 0.226 ha / 0.559 acre. It is considered that the site might accommodate a residential development of flats or town houses together wit...
Land for sale with planning permission to build six properties, in the heart of Biggleswade, literally within strolling distance of the train station. The Hanging Gardens of Biggleswade will be one of the most iconic developments in this sought after market town. The planning permission CB/23/...



























