Commercial Properties For Sale in Bolton, Greater Manchester
Land with Outline Planning for 2 Detached Homes – Plus Potential for 6 Additional Houses (Total 8 Units)* An exceptional off-market development opportunity in Breightmet, Bolton, this substantial 30,000 square feet (approx. 0.69-acre) site benefits from outline planning permission for 2 ...
Miller Metcalfe Commercial are excited to introduce this exciting development opportunity in a highly desirable location! The site has outline planning permission for 9 substantial prestige detached homes approx 4,500sq ft on average per unit (still to be determined). Enjoy ...
The opportunity is to acquire a large detached 3 storey Mill which has recently secured planning consent for 54 Apartments. A mix of mostly one and two bedroom apartments (25 two bed and 27 one bed), with 1 three bedroom apartment on the top floor. The building currently provides 28,211 ft2 of ...
A detached two-storey property with stone elevations beneath multi-pitched slate roofs. The property can be used for a variety of uses and has undergone a premium refurbishment with sympathetic upgrades including external Glasshouse construction, external iron fire escape and an enclosed paved, o...
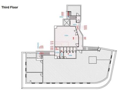
The property provides a modern retail and office building of concrete frame construction, with accommodation arranged over basement to third floors. The building provides a banking hall at ground floor, customer reception and meeting areas at first floor, and administration, internal meeting roo...
The property is situated to the north of Bolton fronting the A58 Moss Bank Way in a primarily residential area. Occupied by Vets4Pets since original construction. The tenant has recently signed a new 15 year lease on the entire property doubling their tradeable floor space. New rent of £65,000 pax.
The offices are currently occupied by Cowgills small business unit whom are relocating to offices at Middlebrook. An attractive detached office building that originally was two separate dwellings before being converted to its existing use. Internally there are offices to ground, first and secon...
A detached Victorian two storey office building with a basement, which was originally built as a residential dwelling. The property is constructed of solid brick elevations under a pitched slated roof with PVC rainwater goods and a mixture of double glazed and timber and PVC glazing. Internally...
Guide Price: £550,000 A prime development opportunity (subject to planning approval) comprising a substantial former retail and office building extending to approximately 772 Sq.M (8,300 Sq.Ft) ( (source EPC). The property is prominently situated fronting onto Bradshawgate in Bolton To...
The subject land is the former Cattle Market Hotel site, though there is no longer any building in situ. The site is cleared, with a part cobble stone surface, with the remainder being unmade and overgrown land. The Land has potential for redevelopment (subject to planning) and could suit either...
The property comprises a substantial three/four storey mid-terrace property which has been internally altered and in recent years, been utilised as a licensed political social club and most recently, a licensed nightclub. Access to the property can be gained from both Mawdsley Street and Chance...
Tannery House comprises a traditionally constructed, semi-detached industrial building of brick and steel-frame construction beneath a flat beam and block constructed roof, extending to approximately 314.18 sq m (3,382 sq ft) GIA. The accommodation is arranged over a single ground floor level, ...
For sale by Modern Method of Auction: Starting Bid Price £375,000 plus Reservation Fee. PLOT FOR SALE, WITH DETAILED PLANNING PERMISSION! We are delighted to market this fabulous development opportunity for two luxury, individually designed five bedroom, five bathroom, fami...
CASA SALES AND LETTINGS bring to the market FOR SALE a great investment opportunity to acquire a fully occupied, 6-bedroom HMO in the heart of Bolton Town Centre, North West. This property is currently generating an annual rental income of £34,580, producing a strong 10% gross yield. Finished to ...
The subject property comprises an attractive garden fronted mid terraced office premises of solid masonry construction set beneath a pitched and slated roof covering. Internally, the accommodation is made up of a mixture of spacious cellular style office rooms plus reception area at ground floor...
For sale by Modern Method of Auction: Starting Bid Price £250,000 plus Reservation Fee. This well-located office space offers a fantastic opportunity for investors and developers alike. Situated on the busy Higher Market Street in the centre of Farnworth close to key transport l...
For Sale by Public Online Auction on 15/01/2025 13:00 . The Blackrod Methodist Church Hall dates from 1899 and comprises a detached building arranged over part lower ground, ground and first floors. The accommodation on the lower ground floor provides two Storerooms which have most recentl...
This mid-terraced property offers accommodation over 3 floors, and located along the popular Halliwell Road in Bolton, offered for sale as an income producing investment. The premises comprises a large ground floor retail area with kitchen and WC. The first and second floors is a one b...


































