Pubs For Sale in DL (Postcode Area)
Paid partnerships can play a role in listing order
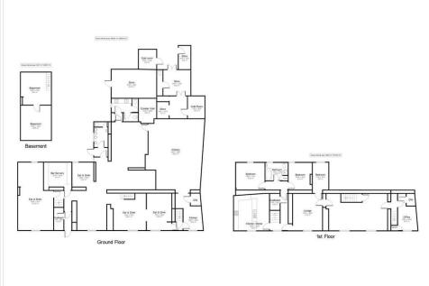
Potential Investment Opportunity. The Royal Oak is a former village inn which benefitted from a public bar, lounge/games room, together with separate owners/managers flat offering spacious three bedroom accommodation. The premises occupies a prominent roadside location...
- Well-Presented Management Ran B&B with Pub and Restaurant
- Accounts Available 31 March 2025
- Annual Turnover £388,326 / Gross Profit £290,349
Former Pub providing flexible space across two floors. Internally the trading area is a ‘L’ shaped bar area to accommodate approximately 40 persons on fixed seating and chairs with a server bar. Considered suitable for a variety of retail, commercial or potentially residential conversion/development
- Two Storey Former Pub & Premises with Rear Yard
- Development Opportunity STP
- Approx. GIA Total Floor Area 3,477 sq. ft. (323 sq. m)
Former Pub providing flexible space across two floors. Internally the trading area is a ‘L’ shaped bar area to accommodate approximately 40 persons on fixed seating and chairs with a server bar. Considered suitable for a variety of retail, commercial or potentially residential conversion/development
A traditional country Village Inn of great character offering an idyllic "lifestyle" business opportunity within this thriving tourist area. The "Four Alls" offers ideal manageable owner occupation, retaining a wealth of original features with traditional public bar and dining area, fully equipped
Potential Investment Opportunity. The Royal Oak is a former village inn which benefitted from a public bar, lounge/games room, together with separate owners/managers flat offering spacious three bedroom accommodation. The premises occupies a prominent roadside location...


