Commercial Properties For Sale in Derbyshire
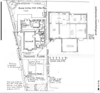
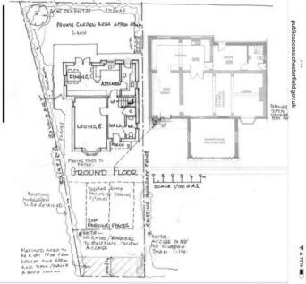
BEING SITUATED ON THE OUTSKIRTS OF LONG EATON, THIS IS A DETACHED SINGLE STOREY BUILDING WHICH PROVIDES A NUMBER OF DIFFERENT USES SUCH AS A WORKSHOP, STORE OR OFFICE – Being located at the head of a driveway off Station Road, this detached single storey building is constructed of brick under a p...
simple SALES COMMERCIAL offers this LARGER than AVERAGE & WELL-SITUATED unit. Boasts large FLOOR to CEILING display windows to front & 25.22m Main Shop Floor+1st floor FUNCTION ROOM & 2 W/C'S, BASEMENT & ATTIC rooms! PROMINENT,busy location off the High St with excellent FOOTFALL in Glossop CENTRE.
A fantastic opportunity to acquire a good-sized building plot in a residential location, with outline planning permission for up to two detached dwellings. The plot extends to approximately 0.25 acres, benefitting from good transport links on the outskirts of Chesterfield.
A well positioned commercial property in great condition situated on the historic Market Place in Chapel-en-le-Frith. The accommodation is split over two levels and includes a staff kitchen, WC and shower room. There is a main office space at the front of the building opening into an additional r...
Situated in the centre of Killamarsh, Sheffield, this multi-use property on Bridge Street presents a fantastic opportunity for both investors and those seeking a versatile living arrangement. The unit boasts a prominent location on the main street, featuring a spacious shop front that is ideal fo...
Commercial Property & Flat | No Chain | Town Centre Location | Excellent Transport LinksSituated in the heart of the popular market town of New Mills, this commercial property with one-bedroom flatpresents an excellent investment opportunity.The ground floor retail unit is currently operating...
***BUILDING PLOT WITH GRANTED PLANNING CONSENT*** PLANNING REF. ERE/0724/0038 A rare chance to acquire a building plot with granted planning consent for a three-bedroom detached bungalow in West Hallam. Ideally located near countryside and local amenities, with excellent transport li...
GUIDE PRICE £150,000 TO £175,000 Nestled in the tranquil area of Gables Close, Holmewood, Chesterfield, this exceptional building plot presents a unique opportunity for those looking to create their dream home. The land is fully serviced, ensuring that all essential utilities are readily...
Planning consent is granted for this individual building plot 400 square metres (0.09 of an acre with planning consent granted for one single three bedroomed detached house. The plot is situated to the rear of the former 17th Century historic former coaching inn which is now being converted to ...
Former Place of Worship with adjoining Assembly Hall, Kitchen, and ancillary space. Extending to 2,780 sq. ft. / 258.3 sqm. or thereabouts, within a site of 0.22-acres / 0.089-hectares. Situated in a slightly elevated position above High Street, within Chellaston. Suitable for a variety of uses, sub
An exciting opportunity to purchase approximately 40.88 acres (16.54 hectares) of productive agricultural grassland, offered in two lots, with convenient roadside access. The land is located on the outskirts of the popular village of Over Haddon. For Sale by Private Treaty. Offers over :...
An excellent opportunity for an investor or owner-occupier. This neatly maintained mixed-use freehold property occupies a prominent and attractive position in the heart of the village, overlooking the War Memorial and perfectly placed for access to local amenities. The location also benefits from...
A superb opportunity to create a fantastic two-bedroom detached family home with comprises a door leads into a welcoming entrance hall, with access to a spacious living room, a modern kitchen/diner, a utility room, and a guest WC. To the first floor, there are two double bedrooms with built-in...
Located on Station Road is this ground floor commercial property that is registered as a food outlet along with a 2 storey apartment. The commercial units still has the extraction in place and is currently used as a shop. There is a counter to the front along with a changing room, WC an...
PRIME LOCATION, PERFECT OPPORTUNITY...This attractive development plot, located at the quiet end of the cul-de-sac on Coronation Avenue offers a rare opportunity to build two high-quality, three-bedroom detached homes. Full planning permission has already been granted after a detailed and thoroug...
**GUIDE PRICE £100,000 - £110,000** DEVELOPMENT OPPORTUNITY! A opportunity to build your own home within the lovely village of Duckmanton, boasting open views to farmland and afar! So if you're looking to build your own home or for an investment opportunity, this is plot of land ...











