Commercial Properties For Sale in Enfield (London Borough)
The property comprises two sections:- To the front of the site is a dental practice, see plan attached, well layed out, providing dental surgeries to the ground floor and ancillary first floor space, providing offices, storage and a staffroom, approx. 1380 sq.ft nett. This part of the property i...
The property comprises of two buildings with internal covered access on ground and first floor. The original building known as 3 Anthony Way is two storey with a further mezzanine second floor. The second building 1a Towpath Road, was completed in circa 2012 and is a modern portal frame wareh...
A circa 1920's built single storey industrial workshop/warehouse with later additions of offices to the front. Ancillary second brick built building/storage area on site, accessed by a shared driveway. External yard/loading area and parking. The property was reroofed some 20 years ago to a prof...
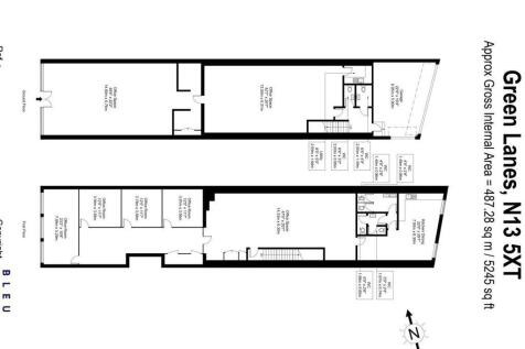
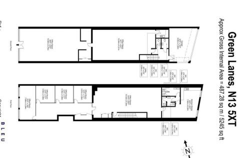
Freehold shop and upper set on ground and first floor 5245 sq.ft. GIA. Ground floor 2 partitioned office space with male & female wc and utility room at rear, door into garage. First floor 4 partitioned offices, male & female w.c and kitchen/dining area. Refurbished to a very high standard a few...
The property comprises two sections:- To the front of the site is a dental practice, see plan attached, well layed out, providing dental surgeries to the ground floor and ancillary first floor space, providing offices, storage and a staffroom, approx. 1380 sq.ft nett. This part of the property i...
Freehold shop and upper set on ground and first floor 5245 sq.ft. GIA.Ground floor 2 partitioned office space with male & female wc and utility room at rear, door into garage.First floor 4 partitioned offices, male & female w.c and kitchen/dining area.Refurbished to a very high standard a few...
For sale via secure sale online bidding - terms and conditions apply. A solid investment, especially with the steady income from the housing benefit tenants. The asking price appears reasonable given the total rent being achieved. The slight modernisation needed could offer an opportunity to ...
Former telephone exchange building converted into offices. Part income producing. The unit is currently divided into 2 units 1 and 3 Marconi Place. Unit 1 - front unit GIA 1992 sq.ft approx, set over ground and first floor. Own street entrance, 2 x w.c's and kitchen. Natural light from the fr...
The premises comprise an end of terrace industrial/warehouse unit forming part of a wider estate. Parking and servicing are available at front and side of the unit. The space is L shaped and has the benefit of 3 loading doors. There are mezzanine areas available if required.
An end-of-terrace modern steel portal frame unit featuring high quality air-conditioned office space. The unit benefits from 6.5-metre eaves height, full height roller shutter door, 3-phase power supply, kitchen and WCs (including shower), passenger lift, and 4 external parking spaces. Investmen...
Rare to market mixed use freehold building currently operating as a storage warehouse with a 2 bedroom on the first floor. The property is to be sold with vacant possession and is thought to suit many different uses such as gym, light industrial, education centre, nursery or office space. The sit...
Freehold residential investment. This recently refurbished freehold investment in a well-established residential area of Enfield comprises two units held under a single title: a spacious four-bedroom house (No. 82) and a self-contained studio flat (No. 82A). The main house (No. 82) is appro...

































