Land For Sale in Teignbridge (district of)
This prime green field residential development site extends to approximately 14.2 hectares (35.08 acres) located on the northern fringe of Dawlish, west of the A379. The site was granted conditional planning permission 08 March 2023 for 201 dwellings of which 29 are affordable.
A rare opportunity to acquire a parcel of land of circa 3 acres of which, just under 2 acres is likely developable, in a primary location, close to the A38 Devon Expressway linking Exeter with Plymouth and further afield. The site is currently occupied by a defunct nursery, with plans submitted t...
This is a unique opportunity to purchase one of three discounted custom build dwellings at Howton Field, where the vendors of the site will construct the proposed dwellings to an externally water-tight shell stage for completion by the purchaser.
A modern working farm with period character occupying an elevated position with uninterrupted views just outside of Newton Abbot, consisting of a well maintained five bedroom Grade II listed farmhouse offering very good family living space, a modern two bedroom bungalow, separate garaging and mat...
A Full 12 Month Licence Holiday Lodge Site Situated on the Outskirts of Newton Abbot Enjoying Outstanding Views, Sold With Three Holiday Homes In Situ and a Further 19 Plots with Additional Glamping Site, Generating a Healthy Ongoing Income. About 2.2 Acres.
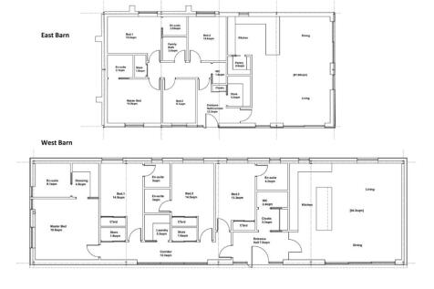
Offered to the market for the first time in nearly 100 years Wrigwell Farm comprises of a large detached farmhouse that offers good spacious accommodation, a two bedroom self contained annex and approximately 26 acres of grazing land and a number of commercial/farm buildings. The house itself off...
The Meadows Smallholding offers the opportunity to acquire a lovely modern bespoke home all set within 9 acres of agricultural or pasture land. The property has been designed to offer an off grid lifestyle which is finished to a high specification with lovey views of the surrounding countryside....
33.83 acres, including agricultural fields and some woodland LOT 2 AND 33.83 ACRES This includes a number of attractive and useful agricultural fields as well as some woodland. This could either be sold with the main farmhouse or as a separate lot. LOT 1 -THE PROPERTY AND 19.74 ACRES - availabl...
Amazing opportunity to acquire a development plot in Longdown with magnificent views, in a superb rural position just three miles from Exeter with full planning permission for a detached house. Amazing opportunity to acquire a development plot in Longdown with magnificent views, in a superb rura...






























