Land For Sale in Thanet, Kent
Residential Development site with Full Planning Permission for 30 flats and a retail shop. The site comprises a retail store on a plot of some 0.22 acres (0.09 hectares) found approximately a 4 minute walk of the sea front and harbor, with its mix of restaurants, bars and cafes. Planning perm...
A self build plot that will deliver stunning, coastal views. Once of just 6 self build plots at a beautiful location in the seaside town of Broadstairs. On plot 3, full planning permission has been granted for a striking, 3,251 sqft contemporary home.
**For Sale By Public Auction 10th December 2025 09:30 AM To inspect the legal documents for this property go to our website to download the legal pack** A Plot of Land Measuring Approximately 0.07 Acres / 283 sq m / 3,046 sq ft Freehold Guide Price = £1,...
**For Sale By Public Auction 10th December 2025 09:30 AM To inspect the legal documents for this property go to our website to download the legal pack** A Plot of Land Measuring Approximately 0.04 Acres / 162 sq m / 1,744 sq ft Freehold Guide Price = £1,...
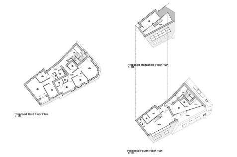
A unique development opportunity located in a prime seafront location, offering panoramic views over the English channel. The site offers a unique opportunity for a landmark mixed-used development. • This seafront site comprising 2.1 acres (0.85 ha), encompasses the Grade II listed Clifton Bath...
FREEHOLD PURCAHSE OF LAND AND 4 BEDROOM DETACHED "OLD FORGE" IN GARLINGE. This is an opportunity to purchase land with full planning for 4 x 4 bedroom detached houses to built with some alterations to the existing property. the land is an existing paddock and is a feature of th...
*** LAND WITH PLANNING *** Five Detached Homes Fully Cleared Site A fully cleared and prime development site located in the popular seaside town of Broadstairs. The site has planning permission granted (Thanet Council F/TH/23/1203) for the erection of five detached family ho...
Outline Planning Permission is currently sought for 7 Detached Homes on Ramsgate Road, Margate. An exciting development opportunity with outline planning permission for the construction of 7 detached homes. The site is located just off Ramsgate Road, Margate and is set on a generous 0.63 Ha pl...
You’ve got a plot of land just between St Nicholas and Birchington — a rare find, tucked away enough to escape the Thanet traffic but close enough to everything that matters.This plot sits in one of the area’s semi-rural settings, with commanding farmland views, offering space, peace, and that go...
PARCEL OF LAND LOCATED AT CLIFFSEND, ON THE OUTSKIRTS OF RAMSGATE This unique parcel of land measuring approximately 0.11 hectares (0.27 acres) presents an opportunity for investors or owner useage and is located between Canterbury Road West and the railway line at Cliffsend. The s...
LOVETTS RAMSGATE are delighted to offer this parcel of land for sale with full planning for 2 bedroom house. The planning issue number can be found on the TDC planning portal. More info will be provided shortly. The land is being offered Freehold and would suit any builders looking for t...
BUILDING PLOT FOR SINGLE DETACHED HOUSE IN PRIME RAMSGATE LOACTIONThis single building plot has full planning permission granted for a single detached three bedroom house with two bathrooms, off street parking for two vehicles and a courtyard garden to the rear. The ground floor will fe...























