Commercial Properties For Sale in Worthing, West Sussex
The premises comprises of an extensive ground floor retail / office premises which for many years traded in the retail sector. This deceptive premises would suit a variety of commercial uses in either the retail, office or medical sectors. Accessed directly off Broadwater Road the property provid...
The Mill Building is a purpose built multi use premises arranged over ground, first, second and third floor levels. The two ground floor Tenants have private entrances accessed via street level with the main offices entrance with its attractive full height glazed doors situated in between. A spac...
A substantial premises made up of two adjoining units each with separate entrances and is offered with vacant possession. The premises are predominantly open plan and consist of a part mezzanine seating area with bar which overlooks the main dance area located on the ground floor, comprising of...
The subject accommodation comprises the ground floor of a substantial, three-storey building. The building is of a traditional construction, beneath a pitched slate-tiled road, and incorporates stucco-rendered and painted elevations above a traditional timber-framed shop front. Internally, the g...
A rare opportunity to purchase or lease a brand new light industrial / warehouse unit of steel portal frame with low level brick fascia’s and micro-rib cladding systems. Unit 1 is detached and is located at the entrance of the estate and provides an occupier with ground floor warehouse acco...
Acting on behalf of our client Guild Care, this impressive detached property offers a fantastic opportunity for investors seeking a well-managed, income-generating property. Comprising five spacious en-suite bedrooms, the property is fully occupied and generates a strong weekly income of £1,132.2...
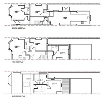
This substantial mixed-use freehold property is situated in a prominent position along the popular Tarring Road in Worthing. It comprises a ground floor commercial premises, a self-contained two-bedroom flat, and a spacious four-bedroom house. The residential properties are fully let, generating ...
**Starting bids from £650,000** A rare opportunity to acquire a four storey end-of-terrace mixed-use building, featuring ground-floor commercial premises and a self-contained maisonette spread across two upper floors. The ground-floor licensed premises offers a large double frontage with a rece...
This well-positioned end-of-terrace property offers an excellent opportunity for both occupiers and investors. Located on the popular Ham Road in Worthing, it is available either as a freehold sale, which includes a self-contained two-bedroom flat on the first floor, or as a ground floor restaura...
Ground floor comprises a cafe with open plan sales area, full height glazed frontage, exposed brick features, laminated floors and recessed lighting. To the rear is a kitchen and two stores, W.C. The first floor comprises a self-contained two bed flat with lounge, dining room, bath and kitchen.
A rare opportunity to acquire the freehold of a substantial town centre three storey building. The property which is well positioned in the centre of the town just off Montague Street comprises of a versatile Class E ground floor commercial premises with the first and second floors pr...
This mid-terraced, three-story property is currently trading as a fish and chip take-away, but will be sold with full vacant possession. The ground floor comprises waiting area, counter & fish range. To the rear are two preparation areas which provide ample storage, WC and doors to the garden. Ad...
A rare opportunity to purchase or lease a brand new light industrial / warehouse unit of steel portal frame with low level brick fascia’s and micro-rib cladding systems. Unit 6 is located towards the front of the estate in a terrace of 8 similar units and provides an occupier with ground fl...
A rare opportunity to acquire the freehold of a substantial town centre three storey building. The property is superbly positioned on Brighton Road close to all Town Centre amenities whilst also benefitting from being a stones throw from the popular Steyne Gardens and seafront.
The premises comprise of a striking four storey victorian building situated on Worthing seafront in the heart of the Town Centre. The property provides accommodation for a ground floor bar / restaurant premises with first, second and third floors providing residential living accommodation. The gr...
This mid-terraced property offers a unique opportunity to acquire a well-maintained, mixed-use building comprising a fully let ground-floor commercial premises and a fully let House in Multiple Occupation (HMO) across upper floors. We have been informed the property is generating a rental income ...
The premises comprises of a substantial two storey commercial building, providing occupation for three separate commercial tenants in the heart of Worthing Town Centre. 40 Ann Street (also known as Enterprise House) provides a large, vacant, Class E premises suitable for a variety of ...
This substantial mixed-use freehold property is situated in a prominent position along the popular Tarring Road in Worthing. It comprises a ground floor commercial premises and a first floor self-contained two-bedroom flat. The residential property is let, generating immediate income, while the c...
A rare opportunity to purchase or lease a brand new light industrial / warehouse unit of steel portal frame with low level brick fascia’s and micro-rib cladding systems. Unit 10 is located in the middle of the estate in a terrace of 10 similar units and provides an occupier with ground floo...















