Commercial Properties To Let in Bexley (London Borough), serviced office, business park, office
Paid partnerships can play a role in listing order
The property comprises a first-floor Class E commercial unit presented in shell condition, providing flexible open accommodation extending to approximately 1,280 sq ft (118.9 sq m). The space is prominently positioned on a busy arterial road, benefiting from strong levels of passing traffic, and ...
A range of office suites, warehouse space and storage units from 500 to 2,500 sqft. The office suites offer allocated parking, furniture, secure keypad access, air conditioning, LED lighting, and kitchenette/WC facilities. The warehouse unit includes a loading bay with electrically operated shut...
- Good quality office space to let in Crayford
- Suites ranging from 500-1,000 sqft
- Fitted out and ready for occupation
The property comprises a first-floor Class E commercial unit presented in shell condition, providing flexible open accommodation extending to approximately 1,280 sq ft (118.9 sq m). The space is prominently positioned on a busy arterial road, benefiting from strong levels of passing traffic, and ...
- Class E (Shell Condition) first-floor commercial space, offering flexibility for a wide range of occupiers
- Approx. 1,280 sq ft (118.9 sq m) of open accommodation
- Prominently positioned on a busy arterial road, benefiting from strong passing traffic
An excellent opportunity to lease Heath House, 255 Broadway, Bexleyheath, DA6 8ET, a substantial office building prominently situated in the heart of Bexleyheath. The property offers approximately 41,734 sq ft of office accommodation arranged over three floors, with additional basement space. ...
- Area - Bexley
- Size - 41734 sqft
- Property Type - Offices to let
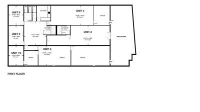
An opportunity to rent up to 4,085 sqft of class E commercial space in River House, a purpose-built commercial building on the Five Arches Business Estate in Sidcup (space available within this range tailored to occupiers requirements). The available space options are located either on the groun...
- Class E commercial space to let
- Up to 4,085 sqft available
- Ample secure cycle & vehicle parking
An excellent opportunity to lease Heath House, 255 Broadway, Bexleyheath, DA6 8ET, a substantial office building prominently situated in the heart of Bexleyheath. The property offers approximately 41,734 sq ft of office accommodation arranged over three floors, with additional basement space. ...
The opportunity to lease an entirely self-contained, modern office building in Erith Town Centre. The property benefits from secure gated entry, parking for up to 25 vehicles and close proximity to Erith Train Station. There is also air-conditioning throughout the property. The property is mostl...
This modern self-contained office comprises of a detached four storey building consisting of open plan accommodation with private offices and meeting rooms. The high-quality specification includes under floor heating, low energy LED lighting, triple glazed windows throughout, kitchen with fitted ...
A range of office suites, warehouse space and storage units from 500 to 2,500 sqft. The office suites offer allocated parking, furniture, secure keypad access, air conditioning, LED lighting, and kitchenette/WC facilities. The warehouse unit includes a loading bay with electrically operated shut...
An opportunity to rent up to 4,085 sqft of class E commercial space in River House, a purpose-built commercial building on the Five Arches Business Estate in Sidcup (space available within this range tailored to occupiers requirements). The available space options are located either on the groun...
Offices to Let in Bexley. An opportunity to let MCC Building, 255 Broadway, Bexleyheath, DA6 8ET. The property provides approximately 3229SQFT of internal accommodation arranged across the first floor. The space comprises generous open-plan office area, a private office, and WC facilities, ...
An opportunity to rent 3,040sqft of office space on the second floor at Sargasso, a purpose built office building on the Five Arches Business Estate in Sidcup. The office benefits from secure fob entry, lift access, reception area and secure under croft car parking for 14 spaces. There is air con...
The accommodation comprises a largely self-contained office separated into open plan and cellular accommodation. Salient features of the property are as follows:- * Access control system * Air conditioning - heating / cooling units * Double glazed with security film * Suspended ceiling...
The property comprises a first-floor Class E commercial unit presented in shell condition, providing flexible open accommodation extending to approximately 1,280 sq ft (118.9 sq m). The space is prominently positioned on a busy arterial road, benefiting from strong levels of passing traffic, and ...
The property comprises a first floor office suite with additional stores. Salient features of the property are as follows:- * Double glazed windows * Fully air conditioned accommodation * 3 compartmental trunking * 2 separate director offices * Self-contained unit with fitted kitchen & WCs...
The property comprises a first floor office suite with additional stores. Salient features of the property are as follows:- * Double glazed windows * Access control system * 2 separate director offices * Self-contained unit with fitted kitchen & WCs * 24/7 access * Security shutter door &...
The accommodation comprises a self-contained office on the second floor. Salient features of the property are as follows:- * Air conditioning * Double glazed windows with security film * Suspended ceilings with LED lighting * Private W/C * Kitchen * 3 compartmental perimeter trunking * D...




