Commercial Properties To Let in Nottinghamshire
Paid partnerships can play a role in listing order
Rent Free* Incentives available on a 12-Month Agreement! Modern business units in Mansfield commercial and light Industry area, just minutes from the M1 and town centre. Ideal for trades, storage, retail, eCommerce and more. Secure, gated site, 24/7 access and ample free parking.
- Versatile & adaptable workspace
- Suspended ceiling and good lighting
- Fully Telecoms and internet enabled
Various sized modern office space available in a great business park location. These unfurnished offices come with ultilities included. Many available for immediate occupation. Ideal for businesses looking for a professional workspace.
- Various sized Office Space Available
- All inclusive rents
- Monthly licence with flexible terms
Location: Antenna is a vibrant creative business hub located in Nottingham's Creative Quarter, just a ten-minute walk from Old Market Square. The property is ideally positioned for businesses in the media, digital, and creative industries, providing an inspiring and collaborative workspace. T...
- High-quality serviced office accommodation
- Prime city centre location
- Up to 10 desk spaces available
Galaxy Real Estate HQ Presents A Newly Refurbished Unit Located In Botany, NG18 5 : Size: 1,500 SQ FT New Electric Shutter - New Toilets - Located in an incredible location - On site security & CCTV - 3 Phase Electric Supply - Nicely painted and new ...
- Attractive Location
- Electric Shutters
- Spacious
The property is arranged over basement, ground and five upper floors accessed via a dedicated reception area fronting Upper Parliament Street and benefits from the following specification: - Entrance doors from street level leading to the reception area - Reception area leading to passenger lift ...
The property forms part of the Albert Martin Business Park which is a secure and self-contained estate of warehouse and manufacturing units. Unit 3 is positioned broadly centrally within the site and comprises a warehouse of steel portal frame construction, with facing brick and profile sheet cla...
The property will comprise a detached portal frame industrial unit incorporating single storey offices and ancillary facilities. The offices will be fitted out to include carpeting / gas fired central heating / Category 2 light fittings and suspended ceilings. A site plan is attached. Full pla...
The property comprises two industrial/warehouse units that are opposite one another with a gated concrete surfaced yard situated in-between the two units. Both units have the following specification: - c.9.52m minimum eaves height - 35kN per m floor loading - An electric roller shutter door per u...
TO LET - READY Q2 2026, NEW BUILD WAREHOUSE UNITS CLOSE TO THE A1 (M) SUMMARY - Brand New Industrial / Warehouse Units - 1,791 Sq M (19,227 Sq Ft) - Available as a Whole or Split - Pre Lets Available - Practical Completion Q1 2026 - 1.4 Miles To The A1 (M) DESCRIPTION A new development compr...
Brand New, high specification industrial / warehouse unit - under construction - available Q1 2026 Corinium 3 @ Symmetry Park is a newly developed industrial warehouse / distribution unit in a prime logistics location at Junction 34 of the A1(M). Offering 18,500 sq ft (1,719 sq m) on a self-cont...
The units are of brick and blockwork elevations beneath a pitched roof. The units are suitable for a variety of uses benefitting from clear span warehouse, WC's, Tea point facilities. Some units benefit from a small office provision. Key Specification Includes: - Roller shutter door - LED lig...
The property comprises a multi-storey period property that consists of principally open plan office accommodation with ancillary facilities. The building has been comprehensively refurbished to include the following specification: - LED strip lighting - Carpet tiled flooring - Comfort cooling a...
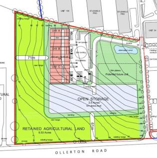
The site extends to approximately 2.34 acres and consists predominantly of concrete and hard stone surface land, and is secured by a fence line. The entrance is also gated and 3 phase power, gas and water are provided to the site. There are several warehouse/workshops. Within the centre of the si...
**Furnished offices move-in-ready | Short-term flexible agreement** This fully restored Victorian building is within walking distance of Nottingham city centre. The fixed monthly rent includes rates, all utilities, a professional reception, use of meeting rooms, on-site parking, and more.
The property comprises a steel portal frame warehouse with clad elevations, located on a well-established industrial estate. Key Features: - Secure large yard area - 6m clear internal height - 2 level access loading doors - LED lighting to warehouse - Office and welfare facilities - Located on ...
The property consists of a modern industrial unit of steel portal frame construction with metal clad elevations. Internally, the unit provides a large warehouse/storage area with racking in situ alongside separate office, workshop and canteen facilities. The first floor provides further office sp...
The premises comprise a detached industrial / warehouse constructed of brick elevations under a pitched roof covering with a centrally located two storey office block of similar materials but constructed under a flat roof covering to the front elevation. The property has extensive frontage to Li...





