Commercial Properties To Let in Stamford, Lincolnshire
Paid partnerships can play a role in listing order
BRIGHT & AIRY OFFICE SPACE connected to a storage warehouse of Smartbox Self Storage (warehouse not available to lease) - viewing is a must. It has a car park for 3 spaces, Kitchen Toilets,24/7 access and CCTV. Comprising separate 2 rooms. Service Charge and Building Insurance have extra costs.
The property comprises a mid-terraced trade counter unit of steel portal frame construction with brick walls surmounted by a lined corrugated sheet clad roof with sky lights. Internally, Unit 3 benefits from separate showroom, warehouse, office and welfare facilities. The showroom is fitted out...
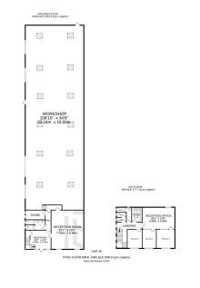
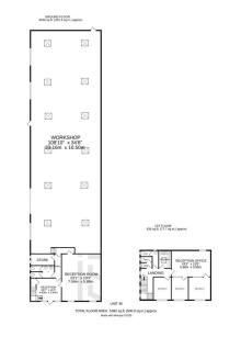
GIA 509 Sq M (5,487 Sq Ft) - Warehouse/Factory unit with two Storey offices and yard to the side. Car parking to the front and a service yard to the side. Heating to the factory area is via a gas fired warm air blower. A two storey office block is situated to the front of the unit incorporating ...
Southview Business Centre comprises a courtyard development of seven individual buildings. Unit 2 is a part two storey, part single store modern office building. The first floor comprises of a large open plan office space, connected to a staff kitchen/ break out area and a private office. The ...
BRIGHT & AIRY OFFICE SPACE connected to a storage warehouse of Smartbox Self Storage (warehouse not available to lease) - viewing is a must. It has a car park for 3 spaces, Kitchen Toilets,24/7 access and CCTV. Comprising separate 2 rooms. Service Charge and Building Insurance have extra costs.
The property comprises a former ambulance station, which has been converted to provide attractive and functional office accommodation arranged over two floors. The building is of brick construction beneath a pitched roof and benefits from a prominent frontage, retaining a number of original archi...
Orion Business Center provides a range of offices and services that are tailored to the individual needs. Office sizes range from 1 person, up to 8/9 people, and everything in between. Prices include all services, furniture, cleaning, maintenance and our virtual reception and virtual office services


