Properties For Sale in Baker's Cross, Cranbrook, Kent
The Lewis, is a charming 3-bedroom house which seamlessly blends modern design with practical and modern living, the perfect forever home for families. Property Highlights Impressive open-plan kitchen/dining/living space Three bedrooms, including the p...
CHARMING AND MOST ATTRACTIVE GRADE II LISTED DETACHED HOUSE SET WITHIN DELIGHTFUL GARDENS, LOCATED WITHIN THE CRANBROOK SCHOOL CATCHMENT AREA AND EASY REACH OF CRANBROOK. Weavers is a Grade II listed country house that dates from the 17th century and was originally two weavers cottages...
Five-Bedroom detached home at Hartley Acres is a beautifully crafted home that blends elegant design, generous living space and high-end specification. With open-plan kitchen/family/dining, separate study, and a landscaped garden, this is a truly refined family residence in Cranbrook, Kent.
The Goddard, number 115 is a stunning five-bedroom detached home. This 5 bedroom detached home benefits from the luxury of countryside living, yet is walking distance to shops and amenities that Cranbrook high street has to offer. The Goddard is the ultimate family home!
With an attractive external facade, The Bramley not only looks great but with its 4 double bedrooms, open plan kitchen/dining/family room, separate lounge, study, utility and garage it's the perfect family home! Plot 65 is ideally situated close to the amenities of Cranbrook high street.
An individual detached chalet style family house, providing well proportioned, five bedroom accommodation arranged over two floors incorporating a ground floor bed/sitting room, all complemented by neatly tended private gardens, ample parking, and double garage, all occupying a most convenient lo...
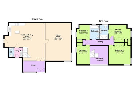
An individual, detached, family house, circa 1950s, providing well proportioned accommodation with four bedrooms (two en suite), three reception rooms and a study, complemented by a well stocked, neatly tended rear garden, approximately 36m, including summerhouse and greenhouse, overlooking a fie...
A well presented character semi-detached house providing four bedroom, two reception room family accommodation complemented by a drive parking with integral garage and 120 foot rear garden or occupying a most convenient location within the town within comfortable walking distance of Cranbrook sch...
Attractive 3 bedroom semi-detached house with a large driveway and rear garden in need of some modernisation. P.P granted for a 2 storey extension to the side and single storey to the rear. Set a short walk from Cranbrook High Street. Internal viewing is highly recommended. C.S.C.A
**Located in the Cranbrook School Catchment Area!** *Potential opportunity to convert the existing garage and build upwards or the potential for a building plot, subject to necessary planning consent - a viewing is a must to fully appreciate the space and potential on offer at this pro...
Viewing a must! Extremely charming 3/4 bed end of terrace Grade II listed cottage, with the well proportioned accommodation set over 3 floors. Located in the heart of the popular town Cranbrook. Benefiting from a courtyard garden, single garage and a wealth of character features throughout. C.S.C.A.
The Lewis, is a charming 3-bedroom house which seamlessly blends modern design with practical and modern living, the perfect forever home for families. Property Highlights Impressive open-plan kitchen/dining/living space Three bedrooms, including the p...
The Willow - Plot 39, Hartley Acres, Cranbrook A stunning three bedroom detached family home. The Willow, Plot 39 is a beautifully designed three bedroom detached residence, arranged over two floors and finished to an exceptional standard. Combining contemporary elegance with tho...



















































































































































