Detached Houses For Sale in Clapper, Wadebridge, Cornwall
Built in 2010, Galtee Beag is an architecturally striking five-bedroom detached home, ideally positioned just moments from the Camel Estuary, Sailing Club and Rock Beach. Arranged over three floors and designed with rooflights and full height glazing to maximise the natural light, this spacious a...
An exceptional and striking 5-bedroom contemporary house, designed with immense flair and panache by Michael Tarring Architects. Located in the heart of this renowned surfing destination, Kai Tak is set in an elevated position on Dunders Hill with stunning sea and coastal views across Polzeath be...
Offered to the market with no onward chain, a unique opportunity to acquire this four bedroom detached cottage, situated in the heart of coastal village Polzeath. It is set on approximately one acre and dates back to 1591, offering an abundance of character features throughout and array of histor...
Set in an elevated position on Porthilly Lane, this substantial detached four-bedroom residence enjoys views across the Camel Estuary toward Padstow. Set within a generous leafy plot and offering scope to modernise or redevelop, Tewennow is ideally located within walking distance of the beach, go...
Less than 1-minutes’ walk to Daymer Bay beach, The Cottage is a very well presented 4-bedroom family home set in a large west-facing garden. Enjoying sea and estuary views from the first floor sitting room and bedrooms, this spacious, modern house is well considered and bathed in natural light. T...
Newly completed, Trelaze is an exceptional four-bedroom detached coastal residence conveniently positioned in the heart of Rock, just moments from the beach and St Enodoc Golf Course. Completed in October 2025, this primary residence showcases outstanding craftsmanship and meticulous attention to...
As its namesake suggests, this redevelopment plot occupies a prominent beachside position, just steps from Polzeath’s surfing mecca. An incredibly rare plot with extant planning permission in place to redevelop the existing 2-bedroom chalet and create two new contemporary and innovative beach hom...
Completed in 2018, this immaculately presented detached 4-bedroom house, is situated between Polzeath and Daymer Bay. The property offers well-proportioned accommodation throughout with spacious open plan kitchen/dining/living room, and a private enclosed rear terrace with a swimming pool, patio ...
An exceptional opportunity to secure a large plot, ripe for redevelopment and situated in a magical and elevated position at New Polzeath overlooking Baby Bay and Pentire Head. With planning granted for a striking, half-slate-hung six-bedroom replacement dwelling with annexe, The Choughs promises...
A rare and exciting opportunity to secure a prime residential building plot in Rock, with detailed planning permission for a striking 5-bedroom detached dwelling. A tranquil plot with a green outlook located just a stone’s throw from Porthilly and Rock beaches.
To be sold for the first time in four decades with no onward chain is this picture perfect four bedroom detached farmhouse located in a tranquil rural position on the edge of the bustling market town of Wadebridge. Tredannick Farmhouse retains a wealth of character and originality in abundance, t...
A substantial and contemporary four-bedroom detached property, tucked away in Polzeath Valley. The Wrens commands an elevated position with far-reaching sea views across the beach and out towards Pentire Point. Designed for modern coastal living, the property is surrounded by generous terraced ga...
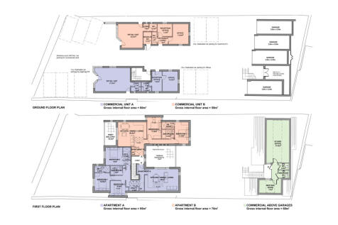
A rare opportunity to acquire a mixed-use, freehold investment property set in the heart of Rock generating circa. £50,000 per annum. Currently comprising two successful retail units, two office units & five garages along with a recently updated 2-bedroom apartment with holiday or residential let...
Situated in the sought-after village of Rock on the North coast of Cornwall, Killcarreg is a spacious detached 3/4 bedroom property with an ensuite master bedroom, and a further 2 bathrooms. Off of the sitting room is a conservatory to the rear garden. The property is situated at the head of a...
MODERN ECO HOME WITH DETACHED GARAGE AND HOBBIES ROOM Step into the future with this stunning eco-friendly home, built just three years ago to combine modern comfort with sustainability. This beautifully designed property offers spacious living, energy-efficient features, and versatilit...
Set in an elevated position, within the highly sought-after village of Egloshayle, is this exceptional and highly energy-efficient modern home, offering generous, flexible accommodation and captivating southerly views across the valley to Egloshayle Church and of the open countryside beyond.





















































































































































