5 Bedroom Houses For Sale in Heybridge, Maldon, Essex
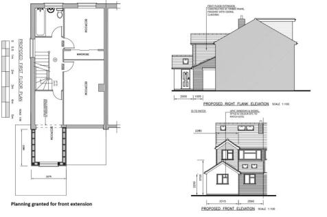
LOOKING FOR A FIVE BEDROOM FAMILY HOME WHILE WORKING TO A BUDGET? THIS HOME IS FOR YOU! Having benefited from a recent loft conversion and with planning granted for a front extension! This home is well presented throughout. The second floor features two bedrooms and a Bathroom with high quality s...
Welcome to this stunning 5 bedroom barn conversion. With 2,960 sq. ft. and within a 0.49 acre plot, this property is the ideal contemporary family home which provides the perfect blend of modern living with traditional charm. This mid-16th-century Grade II listed property has been converted to a...
The Walton can accommodate a large family and provides ample space to entertain. Set across three storeys, at the heart of the home is a generous open plan kitchen, dining and family area. An additional living room and study on the ground floor are bright and airy thanks to attractive ...
This beautifully presented five bedroom detached family home is located on the highly sought-after Blackwater Park in Heybridge. The property benefits from a self-contained one bedroom annexe with its own bedroom and shower room with an additional room above and would be perfect for older childre...
This beautifully presented and versatile six-bedroom detached townhouse offers generous living accommodation across three floors, making it the perfect family home. Set in a sought-after location in Heybridge, the property benefits from flexible room layouts, a south-facing garden and excellent p...
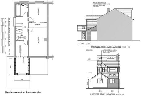
LOOKING FOR A FIVE BEDROOM FAMILY HOME WHILE WORKING TO A BUDGET? THIS HOME IS FOR YOU! Having benefited from a recent loft conversion and with planning granted for a front extension! This home is well presented throughout. The second floor features two bedrooms and a Bathroom with high quality s...































































































































