Houses For Sale in Kent
Page & Wells are delighted to bring to the market this well-presented three-bedroom end of terrace home, conveniently located within easy reach of Maidstone town centre, local amenities and transport links. The accommodation is arranged over two floors and offers bright, modern living sp...
Guide Price; £1,300,000 - £1,350,000 Situated in the charming, tree-lined Pickhurst Park in Bromley, this remarkable six-bedroom, five-bathroom detached home combines luxury with practicality in a highly desirable location that is ideally located within equal distance of Bromley,...
£1,300,000 - £1,400,000 Guide Price. Stunning five bedroom executive home. Exclusive private estate. 0.7 Acre plot with breathtaking elevated vistas. Quadruple garage. High quality fittings throughout. Exquisite gardens. Easy access to local mainline rail stations / high speed rail link in Ashfor...
Fellgarth is situated in a quite stunning setting bordering open farmland on the periphery of Barming. The immediate area has excellent local amenities with the county town itself providing a wide range of shopping, educational and social facilities. There is a station in Barming providing serv...
** GUIDE PRICE £1,300,000 - £1,400,000 ** Set on an impressive plot of just over two-thirds of an acre, this substantial four/five bedroom detached residence is nestled on one of Bearsted's most desirable roads, surrounded by prestigious homes. With enormous potential for expansion and modernisat...
Nestled on the desirable Broadwater Road in a semi rural position on the outskirts of West Malling, this stunning new build detached house offers a perfect blend of modern living and elegant design. Spanning an impressive 2155 square feet in total, this property is ideal for families seeking comf...
This property is currently under offer at £1,300,000. Anyone wishing to make an offer over and above this amount should contact the selling agents Kings on prior to the exchange of contracts. Dewpond, the most luxurious and technologically advanced five bedroom detached, modern ...
Guide Price £1,300,000 - £1,400,000. Nestled in the charming area of Collier Street, Chequer Tree Farmhouse is a stunning Grade II listed detached house that exudes character and history, believed to date back to the 17th century. Set back from the road and beautifully screened by mature laurel h...
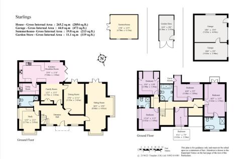
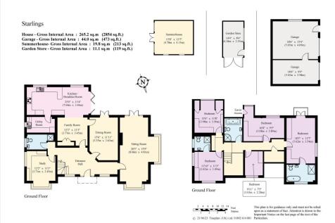
A fantastic five bedroom detached house that offers luxurious and spacious living nestled in a quiet rural location. Set back from the road, you enter Starlings through electronic gates, the driveway leads you up towards the front of the house and surrounding gardens. As you step inside, you are...
AVAILABLE NOW TO BUY OFF-PLAN! CONTACT US TODAY TO ARRANGE YOUR SITE VISIT! A striking, contemporary four bedroom detached home featuring exceptional contemporary design with incredible natural light throughout located in a rare & exclusive development of just 8 homes in the charmi...
Set on an above-average size plot in the highly sought-after area of West Malling, this exceptional five-bedroom detached residence on Teston Road offers the perfect blend of space, style, and location. Immaculately presented throughout, this impressive family home provides versatile living accom...
A substantial modern family home, built in 2021 and situated on a desirable private road within close proximity to Whitstable Community College, Church Street playing fields, supermarkets, Whitstable station (0.5 miles) and a short stroll from the bustling High Street with it's array of independe...
Stunning Four-Bedroom Detached Family Home | High-Spec Finish | Very Large Garden & Ample Parking. Positioned on one of the largest plots on Shepherds Lane, this exceptional four-bedroom detached family home offers approximately 2,646 sq ft of beautifully finished accommodation, combini...
NO Chain - Occupying a desirable rural location set in 3.6 acres (*TBV) of grounds/ pastureland and stabling, an attractive detached ragstone property (3/4 bedrooms/4 receptions) with detached triple garage including a first floor 1 bedroom ANNEXE, heated outdoor swimming pool and separate games ...
Langford Russell are delighted to present this impressive and beautifully appointed chain-free 5/6 bedroom detached family home, set within landscaped grounds in the rural and peaceful village of Well Hill. Offering generous and versatile living accommodation throughout. Upon arrival, ...
PRICE RANGE £1,300,000- £1,500,000 Detached Four Bedroom Residence | 0.6 Acre Plot | 2100+ Sq Ft | 4 Reception Rooms | Development Potential | Swimming Pool | Secluded Setting Positioned less than a mile from Canterbury’s historic city centre and quietly n...
Situated on a sought-after road in Beckenham, this chain-free semi-detached family home presents a fantastic opportunity to add your own style to a truly wonderful property. The ground floor features a spacious entrance hallway leading to the formal reception room at the front of the h...
Blaxland Farm is a unique and historic Grade II listed 14th Century Manor Hall house, situated in a beautifully secluded location and yet within only three miles of central Canterbury. The property has been the subject of extensive restoration over recent years with meticulous attention to d (cont.)
Guide Price £1,300,000-£1,350,000 'Ridgeway' is a superb detached family residence, occupying a very large plot in the much sought after Wansunt Road. Situated within a short walk of Bexley Village and with convenient access to both Bexley and Dartford schools, family homes of this c...
A stunning, detached, contemporary converted barn and a detached one bedroom annexe, providing four/five bedroom family accommodation including a feature sitting//kitchen/breakfast room with island, overlooking farmland and countryside, a separate dining room, study and television room/bedroom 5,...
Alan de Maid are delighted to present this handsome detached residence, perfectly positioned on the highly sought-after Stone Park Avenue, moments from Kelsey Park and surrounded by excellent local schools. This impressive freehold home offers two generously sized reception rooms, ideal for ...
This impressive five bedroom semi-detached family home offers spacious accommodation over three floors, with a south west facing rear garden backing onto fields. GUIDE PRICE £1,300,000-1,400,000. Located just a short walk from Bromley South station and High Street, this property boasts generous..
KFH is pleased to present this charming, detached home featuring six bedrooms and three bathrooms, plus cloakroom encompassing an impressive amount of living space. The property includes a garage, off-street parking, solar panels and a well-established garden. Conveniently located near sought-aft...
***Guide Price £1,300,000 - £1,400,000*** Located in the desirable village of Littlebourne, Canterbury, this extensively developed detached home offers an outstanding level of flexibility for modern family life. Set on a plot of just over three-quarters of an acre, the property has been thoug...









































