Properties For Sale in Kent
A historic Grade I listed period country house in a 40 acre private parkland setting with far reaching views, land and leisure facilities all within 15 miles of Central London. This beautiful country house is ideal for family living, having been refurbished to the very highest standard whilst ma...
An exceptional opportunity to acquire a superb detached family residence in one of the areas most coveted & private locations. This outstanding family home is set behind double security gates approached by an impressive long driveway with a private courtyard. Offering generous living spaces ...
It is rare for such a magnificent and significant property to come to the market. Backing Chislehurst golf course and set in extensive, mature and beautiful grounds of approx. 1.023 acres on exclusive Wilderness Road, this Grade ll listed house extends to almost 8,000 sq ft plus a separate coach ...
This exceptional property presents a rare opportunity to acquire a truly unique residence in the form of a historic Grade II listed Baronial Style Gothic Manor House. Enveloped in an intriguing history, this castle-like manor dates back in parts to the 17th century and has undergone significant r...
Land at Home Farm (Sites A and B) as identified on the Policies Map, is allocated for the development of approximately 49 dwellings at an average density of 30dph. Situated in a favoured location on the edge of popular Wealden village. Located in the Cranbrook School Catchment Area. TENURE: ...
Classically inspired and elegantly proportioned home in beautiful landscaped gardens with pool and tennis court. The estate enjoys a private position, at the end of a long drive and surrounded by vineyards, the property offers the ideal balance between city and country life, being conveniently si...
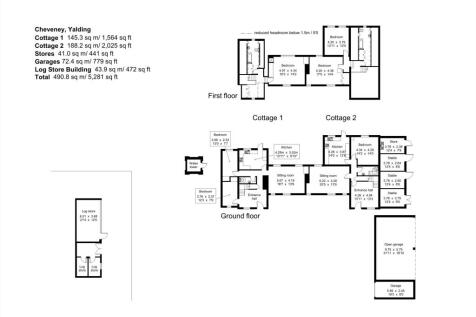
In an elevated rural position, surrounded by formal gardens and parkland, a significant Grade II listed country house recently restored, approached over a long private drive. Cheveney was built in the latter part of the 17th Century, originally of oak framed construction under a plain tiled roo...
On the market for the first time in a number of years we are pleased to offer Ashton Chard a substantial character property located in the heart of the prestigious Keston Park Estate. Set in large grounds of around 1 acre the property sits back on the plot with an extensive frontage an...
Circa 250-acre Commons with £18k+ income, 20+ BNG units per hectare, and scope to formalise 900+ access rights. Includes historic Lord of the Manor of Rusthall title, with roots in 13th-century legislation. A strategic asset blending legacy, ecology, and long-term value. Click to explore.
An elegant and beautifully presented eight bedroom family home residing on just over 1 acre within the highly sought after, private, gated Keston Park. The property offers spacious accommodation arranged over three floors with the addition of a separate one bedroom detached annex. The ...
An exceptionally attractive estate occupying a glorious, secluded location surrounded by its own farmland with Grade II* Wealden Hall House, impressive oast house, spacious cottage and holiday cottage, accompanied by various outbuildings including a traditional unconverted barn, all set in about ...










































































































































































































