Properties For Sale in LA18
This impressive substantial detached house offers a perfect blend of space and comfort, making it an ideal family home. With seven generously sized bedrooms, there is ample room for everyone to enjoy their own private sanctuary. Tucked away from the A595, this property benefits from a peaceful se...
The principal assets of a delightful farming estate, in a particularly attractive location on the edge of the Lake District National Park, including farmhouse, mill cottage, traditional farm buildings, meadowland, pastures, hill grazing and managed woodland. In all about 483.99 acres. Lo...
A unique opportunity, FREEHOLD residential development site Valuable and current/implemented planning permission for 81 dwellings Ref 07/2735/2008 and 09/2310/2016 Strategic commencement of work agreed with Copeland borough council 2018 All enquiries strictly through the sole age...
A productive block of meadowland and pasture and hill grazing on south facing slopes overlooking the Duddon Estuary at the south end of the Lake District National Park. Includes a very attractive range of stone built former barns and steading buildings offer huge potential. About 272.04 acres i...
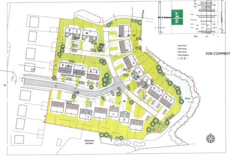
Prime Freehold Development Opportunity Approx. 3 Acres – Former Planning Permission for Housing An exceptional parcel of freehold land, extending to approximately three acres, situated with established access off Devonshire Road. Previously held lapsed planning permission (Ref: 4/76/0...
Situated on the peninsular to the south of the Lake District National Park and the Coniston Fells this impressive Edwardian house was built in 1904/05 and has a traditional layout. Although it has only ever been in the hands of three owners it has been thoughtfully extended over the year...
A beautifully restored farmhouse blending period charm with modern comfort. Featuring exposed oak beams, original fireplaces and stone floors. The property offers spacious living areas, four double bedrooms, two with en-suites. Stunning elevated views, a sandstone patio and gardens
Beck Bank Farm is a charming period farmhouse located within the Lake District National Park near Broughton in Furness. This detached property features six bedrooms, including a master suite with en-suite and dressing room, four reception rooms, and three bathrooms. Set on six acres of pasture...
This impressive barn conversion has been thoughtfully designed and previously let as three individual dwellings, each offering comfortable and self-contained living. This unique property presents an excellent opportunity for multi-generational living, holiday lets, or a combination of both.
Are you looking for a business opportunity or family home with annexe or maybe a bit of both, Look no further than Hickory House and Cottage! Located on the edge of the Lake District National Park, both properties offer ample parking and direct access to pathways leading to Black Combe and th...
Rich in character, spacious and incredibly versatile, this light-filled Cumbrian country house has been extended and updated over the last forty years to create an immensely charismatic home. Enjoyed from most rooms are stunning unrestricted views towards the mighty Old Man of Coniston with th...
Excellent Residential Development Opportunity Central Location – Planning Approved for 33 Units An outstanding opportunity to acquire a centrally located residential development site with approved planning consents for a total of 33 units. Consent granted for: 24 units & 9 additi...
This impressive substantial detached house offers a perfect blend of space and comfort, making it an ideal family home. With seven generously sized bedrooms, there is ample room for everyone to enjoy their own private sanctuary. Tucked away from the A595, this property benefits from a peaceful se...
Tucked away in a peaceful and wonderfully secluded setting, The Ridding is an impressive, spacious, and characterful period property that started life in the late 1700s as a modest cottage, believed to have been extended in the 1820s and then again in the 20th Century. The present owners bough...
Pristine is the word! Everything about this wonderful, spacious, Detached property is pristine! The external bright white paint, the interior with gleaming floors and sparkling windows, the weed free gravel driveway, the meticulously maintained grounds - each and every aspect is an absolute cre...
Nestled in the charming area of The Green, Millom, this impressive detached house offers a perfect blend of modern living and eco-friendly features. Built between 2010 and 2019, the property boasts a contemporary design that is both stylish and functional. Upon entering, you are greeted ...
Set in the charming village of The Hill, on the edge of the Lake District National Park, this beautifully maintained four-bedroom detached property offers the perfect forever home for families seeking space, comfort, and countryside living. Situated on approximately ¾ of an acre, this home bo...
Tucked away within the peaceful hamlet of Lady Hall, Newton Farm is a quintessential former farmhouse that blends the romance of Lakeland tradition with the comfort and practicality required for modern family life. Approached through pretty lanes on the southern fringe of the Lake District Natio...
We are delighted to present for sale this substantial and versatile property, located in the peaceful and picturesque village of Kirksanton. Nestled on the edge of the renowned Lake District National Park and just a stone’s throw from a variety of scenic coastal walks and unspoiled beaches, this ...
Welcome to this delightful detached family home, perfectly positioned in a rural-feeling neighbourhood surrounded by green spaces. Neutrally decorated throughout, this spacious property is ideal for families seeking both comfort and practicality. Step inside and enjoy two bright and flexi (cont.)
























































































































































































































































































